Page image
Page image
Page image
Page image
Page image
Page image
Page image
Page image
Page image
Page image
Page image
Page image
Page image
Page image
Page image
Page image
Page image
Page image
Page image
Page image
Page image
Page image
Page image
Page image
Page image
Page image

H.—3o.

1877. NEW ZEALAND.

REPORT OF THE AUCKLAND GAOL COMMISSIONERS AND CORRESPONDENCE THEREON.

Presented to both Houses of the General Assembly by Command of His Excellency,

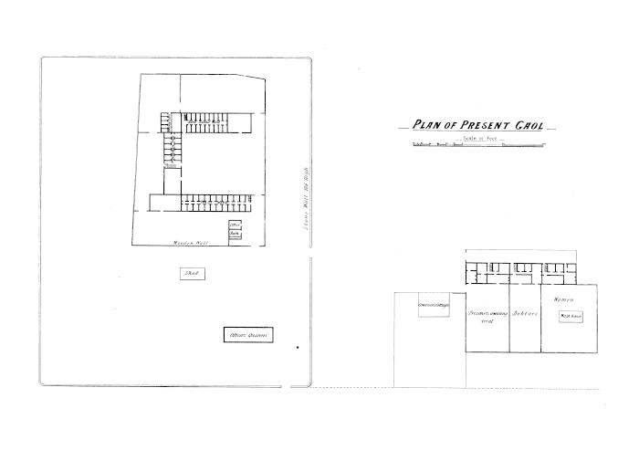
No. 1. The Gaol Commissioners, Auckland, to the Hon. F. Whitaker. Sib,— Auckland, 30th May, 1877. "We have the honor to report that we have inspected the Gaol, taken the testimony of numerous persons, and obtained such other information regarding the management of kindred institutions in this and the neighbouring colonies as we considered necessary to enable us to express our opinions regarding the present condition of the establishment, and to offer suggestions for its future management, in terms of your letter of instructions. The buildings, as shown on the accompanying tracing, consist of a number of old wooden structures, within a well-built scoria wall of 18 feet high, and another wooden erection outside, termed " the new division." The space within the wall is divided—one part being appropriated to the use of the hard-labour men, containing dormitories, &c.; a second to the penal men, with similar accommodation ; and a third, outside an old wooden wall which surrounds the two former portions, to a building occupied by the officers, &c, and a small wooden erection used as a workshop. In respect to the two first enclosures, we found them in a very cleanly condition, in marked contrast to the officers' quarters, which were both untidy and dirty. We deem it unnecessary to remark at great length on these buildings. It is our belief that they are not only unsuitable in construction and faulty in arrangement, but utterly inadequate for even the present number'of occupants. As already stated, the constructions are wooden. Prisoners admittedly have at times matches in their cells. It appears to us difficult to contemplate calmly the consequences of a fire in the dead of night, with no provision for water. Without calculating upon the absence of the warder for ever so short a time, even if present, the smoke in such confined passages would render it next to impossible to liberate the inmates. The defective arrangement is noticeable in its most objectionable form, in that the food is entirely prepared in an apartment immediately underneath that used as the hospital; whilst the lack of room is painfully apparent when the necessity is reluctantly imposed on the Governor of adopting associated sleeping cells. We strongly urge that the Government do not entertain the question either of extending or attempting to improve the existing buildings, and submit for their consideration whether they might not instruct the Governor to proceed forthwith in the execution of the plan herewith forwarded, and which offers one strong recommendation : that a great portion of it can be erected without materially interfering with the present structure. In support of our views in respect to the present buildings, we have pleasure iu directing your attention to the accompanying report from Architect Mahoney. It appears to us that herein the management has been chiefly defective, in that, with a large amount of the kind of labour required, and a valuable stone quarry at its disposal, energetic steps in this direction have not already been commenced—a work that could not be considered otherwise than remunerative, and which, on completion, would enable it to extend and increase the beneficial application of the prison labour. Doubtless this reflection may apply more to the impecunious condition of the late Provincial Government —obliging them to look rather to immediate before distant returns —than to the officers in charge, to whom we should do an injustice did we withhold the praise due to them for producing the satisfactory results, which the accompanying comparative statements disclose, under such disadvantageous circumstances. But, while anxious to accord to them the fullest amount of credit, we feel that we must also in no small degree attribute these important results to the system in operation, introduced in 1871 ; otherwise it is difficult to account for the fact that with eighteen warders and one matron and assistant in a divided institution, this large amount of actual labour could be extracted from an average of 162 prisoners. It seems as if the theoretical difficulties raised against the "task" system have no practical existence, or are easily surmounted by relying on hope as the active agent in influencing the mind of the prisoner. The system is what is termed the reformatory or progressive principle. It demands from the prisoner his utmost efforts in some industrious and remunerative employment, offers in return partial remission of his sentence, and, after the performance of an allotted task, supposed to represent a

H.—3o

2

fair day's work (which is looked upon as due to the State for his maintenance), allows him a bonus, as an incentive to produce as much more as he is able. It is found to work admirably, and, among other good effects, creates strong competitive feelings. For example, in the most laborious work of spauling the stones, the rivalry to attain the maximum credit at the end of the week is so keen that results in excess of the best free labour are obtained. It likewise provides an effectual means of punishment, for any misconduct can be visited with a forfeiture of the right to earn exertion money, as well as any already earned. Each man on task works by himself, and did the accommodation admit of it the " cellular " system would be adhered to. We find that in Victoria the best class of prisoners become entitled, among other privileges, to a ration of tea and sugar, and a small quantity of tobacco, or its equivalent in money. As the chief aim of discipline here appears to be the inculcation of industrious habits by the hope of reward, and as we feel sure that good has flowed from it, we venture to suggest that, if this addition were also made, more may be expected. It is surprising how little malingering or scheming exists, whether from fear of punishment, loss of marks, and consequent non-curtailment of sentence, or the prospect of its being shortened, with the reward in money added, must be a matter of opinion. But no doubt can exist that the work is well and cheerfully performed, and, instead of what has been termed "the Government stroke" being in existence, men who entered slothful have left, after having contracted industrious habits, with a little available means, and in most cases well fitted to earn their livelihood. Annexed we append the amount of exertion money paid last year. It is scarcely necessary to point out the direct advantage derived by the Government, entirely apart from the benefits conferred on the prisoners. One case, however—that of broken metal—will clearly illustrate the working of the principle. Ordinarily elsewhere the prisoner is placed to break the stone with the overseer as a check against idleness, and while he obtains the approbation of the officer in charge, being without other aim, it is only reasonable to suppose that the quantity broken, being of no concern to him, will be as small as possible. Some gaol authorities anxious to present their institutions in the most favourable aspect as self-supporting, even if at the sacrifice of loftier ambitions, assess this description of work as being on a par with free labour irrespective of actual results, while at Mount Eden the prisoners among themselves look upon it as a matter of reproach to be unable to perform the task. On the introduction of exertion money the metal-breakers were paid only 6d. per yard. The sum was found in practice to be insufficient to stimulate many to accomplish more than the allotted task. Now, however, that lOd. is paid the production has largely increased. It appears to indicate clearly that the bait must be tangible before the prisoner will be tempted to strive for it. The profit to the public consists not only in the 3s. 4d., gain on each yard of metal, but in creating and maintaining the prisoner in such a condition that on leaving he will not find it irksome to earn his livelihood. At present the convict is entitled to his benefit out of the transaction by payment in cash at the time of his release ; but we think that where he has a family the option might be allowed him to have it paid to them from time to time. It is also worthy of consideration whether the exertion money might not, in both cases, commence immediately on entering. In the general administration there is great need for some active power. It cannot be expected that the Minister of the department could undertake this duty. In the past if it formed part of the duty of the Visiting Justices, they either have not been aware of it, or have utterly neglected it. We recommend the appointment of a Board of (say) five persons, witli well-defined powers, subject to the veto of the Minister. No difficulty ought to be experienced in obtaining gratuitous services for carrying out such an important work. Doubtless gentlemen holding Her Majesty's Commission of the Peace would not consider the task irksome were the duty imposed on them ; and from such a Board might spring an institution, sadly required here, which has been productive of incalculable good in Victoria—namely, a " Prisoners' Aid Society." Indeed without this adjunct much good, which the system is calculated to work, will, in all probability, be neutralized, if not lost; whereas by extending a kind helping hand to a prisoner whose conduct has merited it, a chance is afforded him to retrieve his lost position after leaving gaol. We misjudge this community much if there are not very many competent persons who, if the need where pointed out to them, would cheerfully devote the time required for such a laudable purpose. The marked absence of efforts for the mental improvement of prisoners is a blot on the institution. We think a library could be instituted with advantage. It is useless for us to make reference to classification so far as regards the present buildings, with only one common yard for all hard-labour men. It appears to us necessary, under the existing circumstances, to strongly urge the Government to take steps to provide additional cells near the Police Court, where all sentences under a week could be served. The labour derived from such is small, and the effect on the discipline is bad, for known cases have arisen where parties obtained incarceration for the purpose of communicating with their friends within. Furthermore, it is most desirable in numerous cases that first convictions should not be brought into contact with old offenders. In addition, we recommend that strong deterrent measures be adopted to this most numerous class, which may be characterized as the hotbed of criminals. The first punishment in the career ought to be made as distasteful as possible ; whereas at present, beyond the loss of liberty, there is little to cause unpleasant recollections. Ration Returns. —We notice that in Victoria 20 ounces of bread for males and 12 ounces for females are allowed. Although the saving of 4 ounces respectively would be considerable, we hesitate to do more than call attention to the fact; but we would particularly suggest that some punitive measures in short-sentence cases be adopted at once, similar to those in Victoria, herewith forwarded for information. We cannot but deplore the existence of the present scale, and trust that it will be remedied immediately.

EL—3O

3

There are many matters which, have occurred to us in. the course of our examination which, had the buildings been in existence, would fittingly have formed a part of this report, such, for instance, as indicating industries to which prison labour could be applied without coming into contact with free labour. We content ourselves, however, with the axiom that all public departments at any rate should avail themselves of this labour. For instance, we would recommend the erection of a bakery: the cost would be trifling, and, for a few additional shillings per day beyond the salary paid to a warder, the services of a good journeyman baker could be obtained, who would act in the double capacity. Surely a benefit would result from supplying the Asylum, Hospital, Old Men's Refuge, Industrial Home, and Training Ship, besides the sick and the destitute. At present a market is required for boots, shoes, and clothing; and the knitting of socks by the women lor these institutions ought to form one of their employments. It appears to us that advantage would accrue to the Government by having separate tenders for the butcher, the baker, and the grocer. Printed rules are exhibited in the prison, though not obeyed. Those of them which are useless ought to be expunged. The example of persons in authority ignoring them cannot be otherwise than prejudicial to the mind of the prisoner. In view of the Government ordering the construction of new buildings, we recommend that a number of skilled masons be employed as warders. Under other circumstances we should have been disposed to recommend that a certain percentage on the actual cash earnings of the prisoners ought to be divided among the overseers. We feel, however, compelled to notice that the officers are paid less than in other gaols in the colony. In gaol accounts it is highly desirable that a uniform system of returns should be adopted throughout the colony, as much in consonance as possible with those in existence among our neighbours. The absence of such a uniform system renders it possible that a gaol with fewer prisoners, and worked at a vastly greater cost, might, by having the labour assessed by those interested in placing an exaggerated value thereon, present accounts calculated to mislead the superficial inquirer. "We regret that we have not had the opportunity of investigating the recent accounts of the Dunedin Gaol. Governor Caldwell, however, was good enough to furnish us with the enclosed estimate of the earnings of thirty prisoners per diem, which appears to us to show either a most exceptional state of the labour market, or that prison labour, without interest, yields better results than free labour, for, deducting the overseers, &c, it leaves about 14s. per diem for each prisoner. No doubt it is capable of explanation, yet what we contend is that from such a diverse mode of accounts no reliable data as to the systems of discipline in operation can be arrived at. For contrast we supply a statement of the earnings of Auckland Gaol on the same principle as that adopted in Dunedin. We found that the money property of the prisoners, sometimes amounting to a considerable sum, is retained by the Governor in a wooden box in the office. We would recommend that it be placed in the Government Savings Bank for the future. Now that the civic authorities have a plentiful supply of water within a short distance, we would press on the Government the urgent necessity of availing themselves of the supply, not only because of the risk of fire, but also for sanitary purposes, which are in an unsatisfactory condition at present. In conclusion, we have to admit our inability to deal as comprehensibly with this very important subject as we could have wished, as the limited time would not permit us to obtain other information for our guidance. If we have travelled beyond that which it was intended we should deal with, we must plead as our excuse zeal for that which must ever deeply concern all right-thinking members of the community, as well as all Governments. We have, &c, W. J. Htjkst, Chairman. Wm. Swanson. Thomas Mobein. The Hon. F. Whitaker, Eesident Minister, A. K. Taylob. Auckland. J. S. Macfaelane.

Enclosure 1 in No. 1. Mr. Mahonet to the Chaieman of the Gaol Commission. Sie,— Auckland, 4th May. 1877. In compliance with your instructions of date 19th March, 1877, I inspected the Mount Eden Gaol, and have the honor to submit to you a sketch plan of the same, and to add that the plan shows the position of the several structures on the Gaol site or reserve. The buildings are of wood, some old and partly decayed, and all unfit for the ordinary purposes of a prison. The structures being of wood, and roofed with shingles, are liable to be set on fire either wilfully or by accident. In either case it is fearful to contemplate the consequences, as it would be almost impossible for the warders in charge to liberate all the prisoners from the several cells and wards as arranged at present. Proper classification under existing circumstances is simply impossible, as, owing to the want of a sufficient number of cells, several prisoners in some eases occupy the same room. For the purpose of supervision the different wards with their airing-grounds are badly arranged, as the Governor and Chief Warder are compelled to go from one airing-yard to the other when making inspection, whereas they should be enabled to overlook all from one or two central positions. There are no workshops worthy of the name, the only accommodation being a low shed about 40 feet long, divided by two partitions, and made to serve as carpenters' shop, shoemakers' shop, and smithy.

H.—3o.

4

The hospital is a miserable makeshift; it is a low room directly over the kitchen, the heat and noise from which, and also the odour from cooking, make it altogether most objectionable for such a purpose. At present there is no proper place for holding Divine service. One of the mesa-rooms is used for the purpose, but it is too small, and utterly unfit for many reasons. Such a building ought to be separated into compartments for the purpose of classifying the prisoners. The sanitary arrangements are very defective; there is only one cold-water bath for the whole prison. For the purpose of health there ought to be one for each ward, supplied with hot as well as cold water. The supply of hot water could be easily established by means of steam pipes from a small boiler placed in the kitchen, which could also generate steam for cooking purposes by connecting pipes from boilers to coppers. It would be very necessary to provide better lavatories. At present the prisoners wash at wooden troughs which are divided into compartments. The troughs are placed in the yard, but not under cover. There is no proper system of sewerage, and, indeed, it is difficult to establish one, as the prison is situated on low ground. It is, therefore, necessary that the earth-system at present in use be continued, but in a more efficient manner; for instance, two or three pits might be formed in suitable places, the sides and ends built up with stone or brickwork, and the bottom covered with 6 or 9 inches of earth. The pipes from scullery, lavatory, &c, could discharge into the pits, and the refuse of vegetables to be thrown in every morning and evening and covered with dry earth, which would deodorize the whole and form a valuable manure. The water would perlocate through the bottom into the ground and so escape ; but it would be rendered innocuous by passing through the earth in the bottom of the pit. The ground being mostly of loose scoria, the water would escape freely. It would also, in my opinion, be very desirable to establish a garden in a portion of the Gaol reserve, where all the potatoes and vegetables required for the Gaol might be raised, the surplus, if any, to go to the other public institutions —viz., the Hospital and Lunatic Asylum. The manure from the pits before mentioned could be removed to the garden, say, once a week, or oftener if necessary. The whole of the garden-work could be done by the prisoners, and, as the labour would be lighter and more agreeable than quarrying, the older prisoners could be more profitably employed at it, or it might be made a premium for good conduct at the discretion of the Governor of the Gaol. The prison, called the new division, is outside the stone wall, and is used to confine females, debtors, and persons awaiting trial, and is totally inadequate for the number of persons confined, and unsuitable in respect to persons awaiting trial, some of whom ought to be imprisoned within the stonewall enclosure, being charged with the gravest offences, and being often desperate characters. With regard to the female prisoners, they are simply "huddled" together; there are no cells, and not even a separate room for the sick; so that it may be questioned if proper discipline is possible under such circumstances ; certainly no classification is possible. There is a great deal of laundry-work done by the female prisoners for the Hospital, Gaol, and Lunatic Asylum, but the appliances for washing, &c, are sadly deficient, and of the most primitive character. If proper washing and laundry appliances were furnished, this department might be made more remunerative. If the whole of this prison or new division were set apart for females only, by a small expenditure work-rooms, cells, infirmary, and classification could be established, which would meet the wants for some years to come. To draw off the debtors and persons awaiting trial, as suggested, and to relieve the over crowded state of the Gaol within the stone wall, it is absolutely necessary to build a new ward, say No. 1 wing on sketch-plan. As the present buildings can only be looked on as temporary, it is desirable that all future erections should be of a permanent character, and should form parts of a general design, as indicated in the accompanying sketch-plan. There is an extensive quarry of excellent stone in the reserve, and the prisoners could be employed quarrying and dressing all the stone required for the new buildings, and also assist in the erection. Water Supply. —I think that a supply of water for washing and general purposes ought to be provided from the Kyber Pass reservoir ; it should also be made available in case of fire. To render the water supply effective in case of fire, stand-pipes should be placed in the yards, and stop-cocks with hose in the several corridors. The hose for the stand-pipes could be kept in the turnkey's room. , If the design shown in the accompanying sketch were adopted, the several parts except No. 2 wing, could be built from time to time without disturbing the present structures, until sufficient accommodation would be provided in the new buildings. The last wing could be erected to provide for future accommodation. I consider the sketch-plan furnished by the Governor and Gaoler, Mr. O'Brien, a very good one; but I think that the few alterations I have suggested, as shown in the accompanying sketch-plan, would be an improvement, as all the cells would then have perfect ventilation; a thorough circulation of air would be established in all the corridors, and all the cells and mess-rooms would be rectangular. The chapel would be the same area as the bottom storey —namely, about 37 by 70 feet. A suitable building for an infirmary ought to be erected as soon as possible; it need not be expensive, and could be placed where shown on plan. If the proposed design were approved by the Government, all matters of construction and detail would have to be worked out and shown in drawings and described in specification, which I shall be glad to do, and superintend the erection, if employed for the purpose. I have, &c, His "Worship W. J. Hurst, Esq., Edwd. Mahoney, Mayor of Auckland, Architect. Chairman of the Gaol Commissioners.

5

H.—3o

Enclosure 2 in No. 1. Retubn A. [Made in same form as in Dunedin Q-aol Report for the same period.] Showing the Earnings and Expenditure of H.M. Gaol, Auckland, from the 1st April, 1874, to the 31st March, 1875. Earnings,— £ s . d. Estimated value of prisoners'labour ... ... ... 9,001 11 9 291 days'labour of tradesman overseer at 12s. ... ... 174 12 0 873 days'labour of foremen warders at 10s. ... ... 436 10 0 Receipts, — Maintenance naval prisoners, &c. ... ... ... 43 17 1 Miscellaneous ... ... ... ... ... 282 13 1 £9,939 3 11 Expenditure:— Salaries and departmental contingencies ... ... ... 5,362 11 10 Excess of earnings over expenditure ... ... ... £4,576 12 1 Retuen B. [Made in same form as in Dunedin Gaol Report for the same period.] Showing the Manner in which the Prisoners in H.M. Q-aol, Auckland, have been employed from the 1st April, 1874, to the 31st March, 1875, and the Value of their Labour. Prisoners quarrying, stonebreaking, removing soil, labour at Government House, Old Men's Refuge, and Provincial Hospital, £ s. d. 23,329 days'work at 7s. ... ... ... ... 8,165 3 0 Masons' work, 49 days at 10s. ... ... ... ... 24 10 0 Boys'work, 843 days at 3s. 6d. ... ... ... ... 147 10 6 Work performed for other departments—viz., Lunatic Asylum, Provincial Hospital, Old Men's Refuge, sick and destitute, &c, by— Shoemakers ... ... ... ... 102 13 0 Carpenters, making 82 coffins at 3s. 6d. ... ... ... 14 7 0 Females, washing 39,261 pieces at 2d. ... ... ... 327 13 6 Females, making clothing, 544 pieces at Is. ... ... 27 4 0 Females, repairing clothing ... ... ... ... 0 13 8 Blacksmiths, piecework ... ... ... ... 110 5 1 Carpenters, piecework ... ... ... ... ... 81 12 0 £9,001 11 9 Labour inside Gaol (for Gaol only), — 471 days'labour of shoemakers and tailors at 6s. ... ... 141 6 0 1,460 ditto cooks, 306 ditto washermen, 3,277 ditto cleaners, 365 ditto barbers and hospital nurses, 307 ditto storemen, at 3s. 6d. ... ... ... ... ... .. 1,000 2 6 592 ditto woodcutters at 2s. 6d. ... ... ... ... 74 0 0 384 ditto clerks at 7s. ... ... ... ... ... 134 8 0 365 ditto schoolmasters at 7s. ... ... ... ... 127 15 0 Female ditto, washing and making and mending prisoners' clothing 282 5 3 £1,759 16 9

Enclosure 3 in No. 1. Exebtion Monet paid to Prisoners in H.M. Gaol, Auckland, for twelve months, from the 1st April, 1874, to the 31st March, 1875. Undeb 2s. 6d, 18, £1 Is. 5d. ; 2s. 6d. and under 5s., 27, £5 3s. 6d.; 5s. and under 7s. 6d., 15, £4 6s. 5d.; 7s. 6d. and under 10s., 13, £5 11s. 7d.; 10s. and under 15s., 14, £8 12s. 4d.; 15s. and under £1, 8, £6 17s. Id.; £1 and under £1 10s., 10, £11 14s. lid.; £1 10s, and under £2, 9, £15 18s. lid.; £2 and under £2 10s., 4, £8 18s. 3d.; £2 10s. and under £3, 1, £2 16s.; £3 and under £4, 1, £3 Is. 6d.; £4 and under £5, 3, £13 5s. lOd.; £5 and under £6, 1, £5 2s. Total number of prisoners paid, 124, £92 9s. 9d. Lowest amount paid to a prisoner—male, Is.; female, 4d. Highest amount paid to a prisoner—male, £5 2s.; female, £2 Is. 7d. Average amount paid —males, 15s. 6Jd.; females, 13s. 2d. Cost of prisoners per head per annum —sentenced, £32 18s.; not sentenced, £27 7s. 6d. Average produce per working man per annum—£31 3s. 6^d. B. L. O'Bbien, G-overnor and Gaoler.

H.—3o

6

Enclosure 4 in No. 1. Estimated Amount of Labour performed by 30 Prisoners employed removing Bell Hill, Dunedin, for Harbour Reclamation, per diem; also the Expenditure therewith. £ s. d. £ s. d. 174 cubic yards of rock at 3s. per yard ... ' ... ... 26 2 0 Expenditure,— 4 horses at 14s. 6d. per day ... ... 2 18 0 Tools and material ... ... ... 1 11 0 Powder and fuse ... ... ... 0 10 0 Boy to attend railway crossing, &c. ... ... 0 5 0 1 sergeant overseer at 14s. ... ... 0 14 0 2 trade overseers at 13s. ... ... ... 160 6 warders at 10s.* ... ... ... 3 0 0 10 4 0 Balance in excess of expenditure per day ... ... ... £15 18 0 * Two of the warders are practical quarrymen, find are constantly at work on Bell Hill; one of them hns charge of two prisoners at the reclamation lip, and he also is actively engaged ; there is also one of them acting as assistant overseer; and two sentries under arms. The trade overseers assist and superintend the prisoners employed in making and keeping tools, wagons, &c, in repair for two other gangs in addition to the above. Enclosure 5 in No. 1. Remaeks on Task-wouk. Task-work, as in force in this Gaol, has been productive of good results. The following are the parts of prison labour in which it is carried out —viz., stonebreaking, spalling, cutting, shoemaking, and tailoring, females making and repairing prison and other clothing. The tasks are as follow: — Winter. Summer. Stone-breaking ... ... 4| yards per week 5i yards per week. „, ,,. f Four heaps per week of Four heaps per week of Stonewalling ... | 41 yard F s 5* yards each. Stone-cutting (ashlar) ... lift, per week 15 ft. per week. Shoemakers ... ... Five pairs boots Six pairs. ( Jacket 1' Jacket. Tailors ... ... ... Four suits < Vest Five suits < Vest. (, Trousers ( Trousers. Females, forty hours per week, calculated from the following scale, viz., —Making men's cloth jacket, six hours ; vest, three hours; trousers, five hours ; shirt, eight hours ; women's chemise, six hours; skirt, four hours; bodice, three hours; jacket, five hours; knitting one pair socks, twelve hours ; knitting one pair stockings, sixteen hours; picking 6 lbs dry opium, eight hours; picking 12 lbs. wet opium, eight hours. Only prisoners that are considered capable of doing the tasks are put on this description of work. In the event of a prisoner not performing his task after sufficient time has been allowed him to learn the work, he is taken before the Gaol Surgeon, and it is from his decision that the prisoner is continued at the same work or put to a different kind of labour, either for a term or permanently.' It is resorted to in the case of old offenders and those having long sentences. The first portion of their time, say six months in a two years' sentence, is on task-work, the remainder quarrying, stone-splitting, &c, if their conduct continues good throughout, if not, they are kept at their allotted tasks until they become well-conducted, industrious prisoners, and obey the orders of those in authority over them. Some prisoners are now in the Gaol who perform their tasks readily, and while at this work are industrious and well-behaved, but when they are put to any other description of labour are idle, and not only a trouble to the officers in charge, but to the prisoners working with them. In a number of cases it is preferred by prisoners for the following reasons : It makes them feel an independence and satisfaction in their work after they have become used to the labour. Each man on task works by himself in the quarry, and is not liable to any annoyance by contact with prisoners of inferior conduct. After serving one-sixth of their sentence with good conduct (if a hard-labour sentence, and six months if penal), they are entitled to earn exertion money, to assist them on their discharge, or procure flannels and socks for their own use. None of the task3 are more than can be done with ease by a prisoner who attends to his work. Exertion Money. —I am of opinion that the system of allowing prisoners facilities to earn exertion money is good. It is an incentive to good conduct in a prisoner during the whole term of his imprisonment. It causes prisoners to exert all their strength on their work. A prisoner knowing that an account is kept of the money he is earning by his own exertion, and that he is weekly increasing the amount to his credit, calls forth greater efforts on his part, and enables a prisoner to do with ease a far greater quantity of work than he would without it, with greater satisfaction to himself and far less trouble to the officers in charge. If a prisoner misconducts himself, he is not allowed to again earn exertion money for one month from the date of the offence. This is felt as a severe punishment, and the liberty to do extra work and earn a few shillings for themselves is considered a great indulgence by prisoners.

7

H.—3o

I consider it better, as by this system, to keep a prisoner's attention confined to his work during his imprisonment than to allow him to work at per day after his time has expired. A prisoner, when his sentence is finished, is restless and unable to confine himself to work to earn the money given to him with the same satisfaction as he would do while he was serving his sentence. B. L. O'Brien, H.M. Gaol, Auckland, 10th May, 1877. Governor and Gaoler.

No. 2. Mr. B. Maclean, Auckland, to the Hon. P. Whitakeh. Sib — Auckland, 6th June, 1877. The Auckland Gaol Commissioners, in their report as published in the Herald newspaper, state " that if the general administration formed part of the duty of the Visiting Justices, they either have not been aware of it, or have utterly neglected it." This is a serious charge against public officers in their official capacity as Justices of the Peace. I have visited the Gaol weekly, and frequently oftener for nearly four years, and I beg leave to request that the Commissioners will point out in what way I have either misunderstood or neglected my duties as Visiting Justice. The Commissioners further report " that the printed rules, exhibited in the prison, are not obeyed, and recommend that some of the rules which are useless, should be expunged." I beg to state that the rules of the prison were drawn up under the authority of the Hon. the Minister of Justice, and they have been strictly carried out in every particular. I have, &c, B. McLean, The Hon. P. "Whitaker. Visiting Justice, Auckland Gaol.

Minute on above Letteb. The Commissioners do not feel the duty imposed on them of complying with Mr. Maclean's request; and, after careful reconsideration of the evidence, find that it will not permit them to modii'y the passages referred to in his letter. W. J. Huest, Chairman.

No. 3. Mr. B. Maclean, Auckland, to the Hon. P. Whitakeb. Sie, — Auckland, June, 1877. I cannot help expressing my regret at the reply of the Gaol Commissioners to the reasonable request contained in my letter of the 6th instant. In their report, the Gaol Commissioners have stated that " if the general administration formed part of the duty of the Visiting Justices, they either have not been aware of it, or have utterly neglected it." As I have been the senior Visiting Justice for nearly four years, and the other Justice having resigned before the report was written, it is apparent that the serious charge of neglect in the above statement must apply chiefly, if not altogether, to me. I had therefore a right to ask that the Commissioners would point out in what way there had been neglect, in order that I might reply to the charge. The Commissioners answer this request by stating that " they do not feel the duty imposed on them to comply with Mr. McLean's request; and, after a careful reconsideration of the evidence, find that it will not permit them to modify the passages referred to in his letter." This imposes upon me the unpleasant duty of denying in the most absolute terms the imputation of the Commissioners, both with reference to this matter and to neglect of rules, which I also referred to in my letter of 6th June; and of further declaring that I am entirely at a loss to know on what shadow of foundation the Commissioners could have been induced to base it. The Commissioners speak very favourably in their report of the cleanliness and orderly working of the Gaol. Yet they find it consistent to combine with this statement of fact imputations of negleet against the Visiting Justices, with whom much of the responsibility of the cleanliness and orderly working rests. They also speak in high terms of the increased payment to stonebreakers as exertion money, but are not apparently aware that this increase was established by me in the face of some opposition. So also with respect to the increased allowance to the prisoners of various trades, which has been overlooked in the report. I mention those points as indicating some of the information that I could have given had the Commissioners afforded me the opportunity, and venture to say that had they done so they would never have allowed the imputations against the Visiting Justices contained in the report to have gone forth under their authority. I respectfully request that this correspondence may, under the peculiar circumstances, be printed with the report. I have, &c, B. Maclean, The Hon. P. "Whitaker. Visiting Justice, Auckland Gaol.

H.—3o

No. 4. The Undeb Secretaby, Department of Justice, to Mr. B. Maclean, Visiting Justice, Auckland. glE _ Department of Justice, Wellington, 27th June, 1877. Adverting to your letter dated June instant, expressing your regret at the reply of the Gaol Commissioners to the request contained in your letter of the 6th instant for an explanation as to your alleged neglect of duty as a Visiting Justice, I am instructed by the Hon. Minister of Justace to inform you that your letter will be filed with the report of the Commissioners, and laid on the table ot the House with it. _,, , I have, &c, - E. Or. Fountain, B. Maclean, Esq., Auckland. Under Secretary.

By Authority: Geobge Didsbtoy, Government Printer, Wellington.—1877. Price 6a.]

8

K r__B_£_jK_P__A_S S M 0 MO

This report text was automatically generated and may include errors. View the full page to see report in its original form.I whakaputaina aunoatia ēnei kuputuhi pūrongo, e kitea ai pea ētahi hapa i roto. Tirohia te whārangi katoa kia kitea te āhuatanga taketake o te pūrongo.
Permanent link to this item
Hononga pūmau ki tēnei tūemi

https://paperspast.natlib.govt.nz/parliamentary/AJHR1877-I.2.2.3.34

Bibliographic details
Ngā taipitopito pukapuka

REPORT OF THE AUCKLAND GAOL COMMISSIONERS AND CORRESPONDENCE THEREON., Appendix to the Journals of the House of Representatives, 1877 Session I, H-30

Word count
Tapeke kupu
6,220

REPORT OF THE AUCKLAND GAOL COMMISSIONERS AND CORRESPONDENCE THEREON. Appendix to the Journals of the House of Representatives, 1877 Session I, H-30

REPORT OF THE AUCKLAND GAOL COMMISSIONERS AND CORRESPONDENCE THEREON. Appendix to the Journals of the House of Representatives, 1877 Session I, H-30

Log in or create a Papers Past website account

Use your Papers Past website account to correct newspaper text.

By creating and using this account you agree to our terms of use.

Log in with RealMe®

If you’ve used a RealMe login somewhere else, you can use it here too. If you don’t already have a username and password, just click Log in and you can choose to create one.


Log in again to continue your work

Your session has expired.

Log in again with RealMe®


Alert