Page image
Page image
Page image
Page image
Page image
Page image
Page image
Page image
Page image
Page image
Page image
Page image
Page image
Page image

Pages 21-34 of 34

Pages 21-34 of 34

Page image
Page image
Page image
Page image
Page image
Page image
Page image
Page image
Page image
Page image
Page image
Page image
Page image
Page image

Pages 21-34 of 34

Pages 21-34 of 34

1.—14.

1908. NEW ZEALAND.

JOINT PARLIAMENT BUILDINGS SITE COMMITTEE (REPORT OF THE) ON THE MOST SUITABLE SITE FOR THE ERECTION OF PARLIAMENT BUILDINGS; TOGETHER WITH MINUTES OF PROCEEDINGS AND EVIDENCE. (Hon. Sir W. J. STEWARD, Chairman.)

Report brought up on the 15th September, and ordered to be printed.

ORDERS OF REPERENGB. Extract from the Journals of the House of Representatives. Friday, the 10th Day of July, 1908. Ordered, " That a Committee be appointed to act in conjunction with any Committee appointed by the Legislative Council for the purpose of inquiring into and reporting upoijthe most suitable site for the erection of Parliament Buildings : the Committee' to consist of Mr. Barolay, Mr. Baume, Mr. W. Fraser, Hon. Mr. Hall-Jones, Mr. Izard, Mr. Massey, Mr. R. McKenzie, Hon. Mr. Speaker, Hon. Sir W. J. Steward, and the mover."—(Right Hon. Sir J. G. Ward.) Extract from the Journals of the Legislative Council. Friday, the 10th Day of July, 1908. Ordered, " That a Select Committee be appointed to act in conjunction with any Committee appointed by the House of Representatives for the purpose of inquiring into and reporting upon the most suitable site for the erection of Parliament Buildings: the Committee to consist of the Hon. the Speaker, the Hon. Mr. Carneroes, the Hon. Mr. Feldwick, the Hon. Mr. Gilmer, the Hon. Mr. Marshall, the Hon. Sir G. M. O'Rorke, the Hon. Mr. Paul, the Hon. Mr. Sinolair, the Hon. Mr. Thompson, and the mover." - (Hon. Dr. Findlay.)

i—l. 14.

1.—14

II

EEPOET.

1. The Committee appointed to inquire and report as to the most suitable site for the erection of new Parliamentary Buildings have the honour to report that they have duly inquired into the matter, and have examined the following witnesses : viz., Messrs. John Campbell, Government Architect; Jackson Palmer, Chief Judge Native Land Court; H. J. H. Blow, Under-Secretary for Public Works; J. M. Batham, llegistrar-General of Lands and Deeds; G. F. C. Campbell, ValuerGeneral ; A. Hamilton, Director of Museum; P. Heyes, Commissioner of Taxes and Superintendent Government Advances to Settlers Department; and Charles Wilson, Parliamentary Librarian. 2. The evidence of these witnesses is attached to this report, and, in the opinion of your Committee, clearly shows that the site presently occupied by Government House and now temporarily used by the Legislature has great advantages over the site bounded by Hill Street, Molesworth Street, and Sydney Street, on which were erected the recently destroyed Parliamentary Buildings (afterwards referred to in this report as " the Molesworth Street site "), and that no other available site in the City of Wellington is equally suitable. 3. The evidence also shows that further accommodation for the various Departments of the public service, and also for the Parliamentary Library and the Museum, is urgently required, the building in Lambton Quay being already fully occupied, and affording barely sufficient accommodation for the officers (numbering 670) employed therein, although to relieve the pressure a number of suites of offices scattered over various parts of the city are rented by the Government at a cost of £3,117 per annum. 4. Your Committee find that to extend the building on Lambton Quay would be to increase the already serious risk of destruction by fire, to which not only the building itself but also the valuable and irreplaceable public records stored therein are now exposed. 5. Your Committee regard it as imperatively necessary to make provision for suitable fireproof buildings, and they find that this can best be effected by erecting such buildings on the Molesworth Street site. 6. They recommend that this be done, and that as soon as possible all the Departments now accommodated on Lambton Quay be gradually transferred to buildings to be erected on the Molesworth Street site. 7. So soon as this is carried into effect the block bounded by Lambton Quay, Featherston Street, Bunny Street, and Whitmore Street, on which the present wooden building stands, could be leased to the public in building allotments for a total rental which would provide interest on a large capital sum, the present value of the land being estimated by the Valuation Department at .£264,000. 8. Your Committee therefore report that, in their opinion, the new Parliament Houses, including a new Library building, should be erected on the Government House site, and that the Molesworth Street site, including those portions of the old Parliamentary Buildings not destroyed by fire," should be utilised for departmental buildings and offices, and the old parliamentary lawntennis ground as a site for a building for the Museum, the Lambton Quay block to be eventually dealt with as above indicated; the sections and intersecting street-lines being laid off as shown in " Plan No. 2" as prepared by the Public Works Department: always provided that satisfactory arrangements can be made as between the Government and the City Council. 9. Your Committee desire to point out that the arrangements thus proposed will entail the necessity of providing a new site for Government House, the selection of which does not come within the order of reference. Wμ. J. Steward, 15th September, 1908. Chairman.

1.—14

III

MINUTES OF PROCEEDINGS. Thursday, 30th July, 1908. House of Representatives. The Committee met, pursuant to notice, at 11 a.m. Present: Mr. Baume, Mr. W. Fraser, Hon. Mr. Guinness, Mr. Izard, Mr. R. McKenzie, Hon. Sir W. J. Steward, Right Hon. Sir J. G. Ward. The order of reference setting up the Committee was read by the Clerk. On the motion of the Right Hon. Sir J. G. Ward, the Hon. Sir W. J. Steward was elected Chairman. The Hon. Sir W. J. Steward then took the chair. Resolved, That the Committee do meet the Committee of the Legislative Council. The Committee then adjourned. Legislative Council. The Committee met, pursuant to notice, at 11 a.m. Present: Hon. Mr. Bowen, Hon. Dr. Findlay, Hon. Mr. Gilmer, Hon. Mr. Paul, Hon. Mr. Sinclair, Hon. Mr. Thompson. The order of reference was read by the Clerk. On motion of the Hon. Dr. Findlay, the Hon. Mr. Bowen was elected Chairman. The Hon. Mr. Bowen then took the chair. Resolved, That this Committee do now adjourn in order to meet the Committee of the House of Representatives. Joint Committee. The Committee met at 11.15 a.m. Present: Hon. Mr. Bowen, Hon. Dr. Findlay, Hon. Mr. Gilmer, Hon. Mr. Paul, Hon. Mr. Sinclair, Hon. Mr. Thompson, Mr. Baume, Mr. W. Fraser, Hon. Mr. Guinness, Mr. Izard, Mr. R. McKenzie, Hon. Sir W. J. Steward, Right Hon. Sir J. G. Ward. On the motion of the Right Hon. Sir J. G. Ward, the Hon. Sir W. J. Steward was elected Chairman. The Hon. Sir W. J. Steward then took the chair. On motion of the Right Hon. Sir J. G. Ward, it was resolved, That the Government Architect be directed to attend the next meeting of this Committee, and to produce any sketch-plans in his possession for the new Parliament Buildings and for the utilisation of the old Parliament Buildings site for public buildings, and of the present Government Buildings site for leasing purposes; and also any sketch-plans and estimate for a new Government House; and that the Chief Judge of the Native Land Court (Mr. Jackson Palmer), the Under-Secretary for Public Works, the Valuer-General, and the Chief Officer of the Deeds Department be asked to hold themselves in readiness to attend before this Committee when required. The Committee then adjourned until 11 a.m., Tuesday, 4th August. Tuesday, 4th August, 1908. The Committee met, pursuant to notice, at 11 a.m. Present: Hon. Sir W. J. Steward (Chairman), Hon. Mr. Carncross, Hon. Dr. Findlay, Hon. Mr. Paul, Hon. Mr. Sinclair, Hon. Mi. Thompson, Mr. Barclay, Mr. W. Fraser, Hon. Mr. HallJones, Mr. Izard, Mr. Massey, Mr. R. McKenzie, Right Hon. Sir J. G. Ward. The minutes of the previous meeting were read and confirmed. Mr. Campbell, the Government Architect, attended, and produced plans, and gave evidence before the Committee. Resolved, on the motion of the Right Hon. Sir J. G. Ward, That the plans produced by the ♦Government Architect be lithographed for the information of members. The Committee then adjourned sine die.

1.-14

IV

Tuesday, 25th August, 1908. The Committee met, pursuant to notice, at 11 a.m. Present: Hon. Sir W. J. Steward (Chairman), Hon. Mr. Bowen, Hon. Dr. Findlay, Hon. Mr. Gilmer, Hon. Mr. Marshall, Hon. Sir G. M. O'Korke, Hon. Mr. Paul, Hon. Mr. Thompson, Mr. Barclay, Mr. Baume, Mr. W. Fraser, Hon. Mr. Guinness, Hon. Mr. Hall-Jones, Mr. Massey, Right Hon. Sir J. G. Ward. The minutes of the previous meeting were read and confirmed. On the motion of the Chairman, it was resolved, That the evidence taken by the Committee be printed. Mr. Campbell, Government Architect, attended and continued his evidence. Ballroom at Government House. —On the motion of the Hon. Mr. Guinness, it was resolved, That, in the opinion of the Committee, the ballroom and drawing-room in the new Government House should be widened to 40 ft. Dining-room at Government House. —Resolved, That, in the opinion of the • Committee, the dining-room in the new Government House should be extended in length to 41 ft. Chief Judge Jackson-Palmer, of the Native Land Court, attended, and gave evidence before the Committee. Resolved, That the Under-Secretary for Public Works, the Valuer-General, and the Chief Officer of the Deeds Department be summoned to attend the next meeting of the Committee. Resolved, That the Chairman arrange with the Right Hon. the Premier as to the date of the next meeting. The Committee then adjour»ed sine die. Tuesday, Ist Septemheh, 1908. The Committee met, pursuant to notice, at 11 a.m. Present: Hon. Sir W. J. Steward (Chairman), Hon. Mr. Carncross, Hon. Dr. Findlay, Hon. Mr. Marshall, Hon. Mr. Paul, Hon. Mr. Sinclair, Hon. Mr. Thompson, Mr. W. Fraser, Hon. Mr. Guiuness, Hon. Mr. Hall-Jones, Mr. R. McKenzie, Right Hon. Sir J. G. Ward. The minutes of the previous meeting were read and confirmed. Mr. H. J. H. Blow attended and gave evidence. Mr. J. M. Batham, Registrar-General of Lands and Deeds, attended and gave evidence. Mr. G. F. C. Campbell, Valuer-General, attended and gave evidence. Resolved, That the Commissioner of Taxes and the Director of the Museum be summoned to attend the next meeting of the Committee. The Committee then adjourned until 11 a.m. on Wednesday, the 2nd September. Wednesday, 2nd September, 1908. The Committee met, pursuant to notice, at 11 a.m. Present: Hon. Sir W. J. Steward (Chairman), Hon. Mr. Bowen, Hon. Mr. Carncross, Hon. Dr. Findlay, Hon. Mr. Marshall, Hon. Mr. Paul, Hon. Mr. Sinclair, Hon. Mr. Thompson, Mr. Baume, Hon. Mr. Hall-Jones, Mr. Izard, Mr. R. McKenzie, Right Hon. Sir J. G. Ward. The minutes of the previous meeting were read and confirmed. Mr. Hamilton, Director of the Dominion Museum, attended and gave evidence. • Mr. P. Heyes, Commissioner of Taxes, attended and gave evidence. Mr. C. Wiison, Chief Librarian, General Assembly Library, attended and gave evidence. On the motion of the Right Hon. Sir J. G. Ward, the Committee then adjourned until 11 a.m. on Thursday, the 3rd September. Thursday, 3rd September, 1908. The Committee met, pursuant to notice, at 11 a.m. Present: Hon. Sir W. J. Steward (Chairman), Hon. Mr. Bowen, Hon. Mr. Carncross, Hon. Mr. Marshall, Hon. Mr. Paul, Hon. Mr. Sinclair, Hon. Mr. Thompson, Mr. Barclay, Hon. Mr. Guinness, Hon. Mr. Hall-Jones, Mr. Izard, Right Hon. Sir J. G. Ward. The minutes of the previous meeting were read and confirmed. Mr. H. J. H. Blow attended and gave further evidence. Mr. G. F. C. Campbell attended and gave further evidence. On the motion of the Hon. Mr. Guinness, it was resolved, That the Committee are of opinion that the Government House site is the most suitable one for the new Parliament Buildings, and the Committee recommend that the old Parliament Buildings site should be utilised for Departmental Offices and for a Museum building. The Right Hon. Sir J. G. Ward moved, and it was resolved, That a sub-committee be appointed to draw up a report, and that the sub-committee consist of Hon. Sir W. J. Steward, Hon. Mr. Bowen, Hon. Mr. Guinness, Hon. Mr. Sinclair, and the mover. The Committee then adjourned.

1.—14

V

Thursday, 10th September, 1908. The sub-committee met, pursuant to notice, at 11.30 a.m. Present: Hon. Sir W. J. Steward (Chairman), Hou. Mr. Bowen, Hon. Mr. Sinclair, Right Hon. Sir J. G. Ward. Resolved, That the following report be presented to the main Committee on Friday, the 11th September : — 1. The Committee appointed to inquire and report as to the most suitable site for the erection of new Parliamentary Buildings have the honour to report that they have duly inquired into the matter, and have examined the following witnesses, viz. : Messrs. John Campbell, Government Architect; Jackson Palmer, Chief Judge Native Land Court; H. J. H. Blow, Under-Secretary for Public Works; J. M. Batham, Registrar-General of Lands and Deeds; G. F. C. Campbell, Valuer-General; A. Hamilton, Director of Museum; P. Heyes, Commissioner of Taxes and Superintendent Government Advances to Settlers Department; and Charles Wilson, Parliamentary Librarian. 2. The evidence of these witnesses is attached to this report, and, in the opinion of your Committee, clearly shows that the site presently occupied by Government House and now temporarily used by the Legislature has great advantages over the site bounded by Hill Street, Molesworth Street, and Sydney Street, on which were erected the recently destroyed Parliamentary Buildings (afterwards referred to in this report as " the Molesworth Street site "), and that no other available site in the City of Wellington is equally suitable. 3. The evidence also shows that further accommodation for the various Departments of the public service, and also for the Parliamentary Library and the Museum, is urgently required, the building in Lambtou Quay being already fully occupied, and affording barely sufficient accommodation for the oilicers (numbering 670) employed therein, although to relieve the pressure a number of suites of offices scattered over various parts of the city are rented by the Government at a cost of £3,117 per annum. 4. Your Committee find that to extend the building on Lambton Quay would be to increase the already serious risk of destruction by fire, to which not only the building itself but also the valuable and irreplaceable public records stored therein are now exposed. 5. Your Committee regard it as imperatively necessary to make provision for suitable fireproof buildings, and they find that this can best be effected by erecting such buildings on the Molesworth Street site. 6. recommend that this be done, and that as soon as possible all the Departments now accommodated on Lambton Quay be gradually transferred to buildings to be erected on the Molesworth Street site. 7. So soon as this is carried into effect the block bounded by Lambton Quay, Featherston Street, Bunny Street, and Whitmore Street, on which the present wooden building stands, could be leased to the public in building allotments for a total rental which would provide interest on a large capital sum, the present value of the land being estimated by the Valuation Department at £204,000. 8. Your Committee therefore report that, in their opinion, the new Parliament Houses, including a new Library building, should be erected on the Government House site, and that the Molesworth Street site, including those portions of the old Parliamentary Buildings not destroyed by fire, should be utilised for departmental buildings and offices, and the old parliamentary lawntennis ground as a site for a building for the Museum, the Lambton Quay block to be eventually dealt with as above indicated; the sections and intersecting street-lines being laid off as shown in " Plan No. 2 " as prepared by the Public Works Department: always provided that satisfactory arrangements can be made as between the Government and the City Council. 9. Your Committee desire to point out that the arrangements thus proposed will entail the necessity of providing a new site for Government House, the selection of which does not come within the order of reference The Committee then adjourned. Friday, 11th September, 1908. The Committee met, pursuant to notice, at 11 a.m. Present: Hon. Sir W. J. Steward (Chairman), Hon. Mr. Bowen, Hon. Mr. Carncross, Hon. Mr. Paul, Hon. Mr. Sinclair, Hon. Mr. Thompson, Mr. W. Fraser, Hon. Mr. Guinness, Hon. Mr. Hall-Jones, Mr. Izard, Right Hon. Sir J. G. Ward. The minutes of the previous meeting were read and confirmed. Resolved, That the Chairman be directed to present the report to the House on Tuesday next, and to move that its consideration be made an order of the day for next sitting-day; and that the Hon. Mr. Sinclair present the report to the Legislative Council, and move to the like effect. On the motion of the Right Hon. Sir J. G. Ward, it was resolved, That a vote of thanks be passed to the Chairman (Hon. Sir W. J. Steward) for the able manner in which he has conducted the meetings of the Committee. The Committee then adjourned. ii—l. 14.

I. -14.

MINUTES OF EVIDENCE. Tuesday, 4th August, 1908. John Campbell examined. (No. 1.) 1. The Chairman.] You are the Government Architect?— Yes. 2. Eight Hon. Sir J. G. Ward.] Well, Mr. Campbell, have you the sketch-plans with you that were ordered by the Committee?— Yes. 3. Would you be good enough to produce them and explain what they are? —This sketch-plan [produced, and marked " A "J iS a plan showing how the site of the old Parliamentary Buildings could be utilised for departmental offices. 4. The Chairman.'] Does that indicate the existing portion? —The existing portion is coloured g re y —the undestroyed portion. That coloured light pink represents the new buildings. "5. What would be the space between this front portion and Molesworth Street?—l was suggesting that we should increase the width on the Molesworth Street frontage from 52 ft. to 60 ft. The dotted line represents the present site. We are setting back the building. 6. What is the distance from the present street-line in Molesworth Street to the front of the building-line? —An average of 15 ft. 7. How much of that do you propose to throw into Molesworth Street? —About Bft. 8. Then, of course, the remaining number of feet is an open space between the front of the building and the fence? —Yes. 9. Now, take the Sydney Street site of this plan and give the same information. How many feet from the line on which the old Parliamentary Buildings stand do you propose to set back the existing building?— Twenty-three feet from present street-line generally, but with less at certain projecting parts of proposed building. 10. And how much of that is thrown into Sydney Street by way of extra width of street?— Sixteen feet. The street is increased from 50 ft. to 66 ft. 11. There then remains a space between the fence and the building?— Yes. 12. How much? —Seven feet. 13. Practically the same as the other side? —Yes, practically the same. 14. Then, in regard to the Hill Street side: the proposed new building is in line with the present library block? —Yes, which is 24 ft. from the fence in Hill Street. 15. What is the distance from the front of the new building—the additional length which will be built on to the Hill Street side?— Two hundred and ten feet additional length. 16. Well, on the same side and behind the existing building towards the tennis-court, how many feet do you extend that?— One hundred and fifty four feet. This wing in Sydney Street goes back a further 80 ft. 17. It goes a further length on the Sydney Street frontage of 80 ft? —Yes. ■ 18. And the total frontage of the building to Sydney Street is what? —Five hundred and fifty-eight feet. 19. Mr. W. Fraser.] With regard to this line you have marked, is that the line upon which the foundation of the present building exists? —It is set further back than was Frain's contract. 20. How far back? —About 20ft. further back. The present buildings go to the Sydney Street edge, and we have gone back 20 ft. 21. Bight Hon. Sir J. G. Ward.] Why do you propose to go back 20 ft.?— One reason was that we should increase the width of Sydney Street from 50 ft. to 66 ft. in order to have more nii-space between the Departmental Buildings. 22. Mr. W. Fraser.] Do you not lose certain foundations?—We lose the front wall of Frain's foundation. 23. Would you lose it if you took it off the other side?—We could not take it off the other side because we have the Mines Department's brick building there. 24. That is the other side of Museum Street? —If you widened the street that side you could not continue the width ; but if you widened it on the other side the street may be continued right through. 25. Right Hon. Sir J. G. Ward.] But is that not also to get rid of the soft foundation? —Yes, by keeping back 20 ft. we avoid a very imperfect foundation. There is an old gully which runs right down there. 26. As a matter of fact, I understand that by putting the foundations on the solid the cost would be small in comparison with the cost of excavating on the soft portion—you would save that?— Yes. 27. The Chairman.] What is the comparative superficial area occupied now by the existing portion of the building—roughly?—ll,ooo square feet ground-area, or 20,000 square feet floorarea. I—l. 14.

1.—14.

2

[j. GAMPBKLL.

28. And what is the total area of the new portion? —176,000 square feet entirely new, and 9,000 square feet proposed new story over existing portion : total, 185,000 square feet. 29. In other words, it is about nineteen times the area of the existing portion?— Yes. 30. Right linn. Sir J. G. Ward.] I want to get that a different way; I want to ask Mr. Campbell a question for our guidance, because this proposal will be taken in conjunction with a gradual process of transfer of Departments from the Government Buildings below to the Molesworth Street and Hill Street portions. Can you tell us how many square feet there are in the Government Buildings?—loo,4B4 square feet. 31. And how many square feet in the building suggested on the old Parliamentary Buildings site?—2os,ooo. 32. How much greater is that than the Government Buildings?— Double, and 5,000 square feet additional. 38. Mr. hard.] That is the floor -space?-- Yes. Many portions of the one building are only three-story, whereas the other has four. 34. Right Hon. Sir J . G. Ward.] While we are upon this I might say that evidence will be given later on which will show you that we shall have to make provision for some Departments before long on the Molesworth Street frontage. Assuming that frontage was erected for the purpose of providing for Government Departments, what would be the cost of that portion? — About ,£20,000. 35. As far as I know, the only portion that we should require to go on with at present would be the Molesworth Street frontage, and that, you say, would cost £20,000? —Yes. 36. Of that proposed buildftig?—Yes. 37. If we do decide to come here, we want to have a site whereby portions can be erected by degrees covering a period of years when accommodation is necessary. Is this proposed building fireproof?—Tt is estimated to be fireproof. 38. And suggested to be built of what? —Brick and stone, steel beams, and fireproof floors. 39. And in comparison with the wooden building, it would be a safe building? — Perfectly safe. 40. Hon. Mr. Paul.] What is the total estimated cost of the building shown on the plan?— £188,000. That is for the 185,000 ft. of new work. 41. Right Hon. Sir J. G. Ward.] We do not require to provide at present for more than £20,000 —we are not suggesting the expenditure of the £188,000. 42. Mr. W. Fraser.] How far would the £20,000 go?— The frontage to Molesworth Street is 182 ft. by a depth of 50 ft. That is three-story in one portion and four-story in Sydney Street. 43. What relation does the pink part fronting Molesworth Street bear to the whole building? —Between a sixth and a seventh of the whole building. 44. The grey portion is a ninth of the whole lot? — It is less than a ninth. Eleven thousand feet is the ground-area of that building, and 20,000 ft. is about the floor-area, which is about one-tenth of the whole lot. 45. Out of how many?—2os,ooo ft. The portion at the lower, or Sydney Street, end has four floors, and the other part only three. 46. Right Hon. Sir J. G. Ward.] In any case, I suppose the frontage would bo certainly n little more costly for the interior portion of this building?— Yes, it may be. 47. Hon. Mr. Paid.] In the ordinary course of events you must have a complete plan?—-I might point out that this building will be much less costly—the building that is marked pink. I see one-seventh will cost £20,000, and the total cost is £180,000. 48. Right Hon. Sir J. G. Ward.] Have you got here the plan of the suggested Museum? —I have the original plans which were drawn up but which we had to abandon. This plan was drawn for the building to be built in conjunction with the Geological and Mines Departments. [Plan explained.] 49. Do you recollect what the cost of that was to be?—£l4,ooo. The building for the Museum was only one block, but there were supposed to be three large halls occupying the whole frontage of Museum Street. The cost of the Museum portion was to ho £7,000. and the balance was to be for the Mines Department and Health Department. [Plan marked " B " produced.] 50. What is that plan?—A plan showing how the present Departmental Buildings site could be utilised for shops, warehouses, <fee. 51. This portion is the whole of present building [indicated!? —Yes, that represents the present Departmental Buildings —the portion coloured pink on the plan represents a block of buildings which might be erected without disturbing the existing building except that we cut off tin , side wings and front, or otherwise they would come up too close to the new buildings. Shops and warehouses might be erected on all the frontages practically without disturbing the old wooden building. The blue portion denotes the warehouses and' shops which would be erected when portion of existing building still remaining is removed. 52. Mr. W. Fraser.] What about the Telephone Exchange?— That would go up to the top of the new Post Office. Right Hon. Sir J. G. Ward: That is going there irrespective of this building. 53. Mr. W. Fraser.] Would not that increase the risk of fire with these buildings there and the wooden building in the centre? Supposing a fire took place in any one of those buildings, it would almost be sure to communicate to the others? —This building would be fireproof. The buildings are nowhere nearer than 40 ft. in any case. 54. Every section is a separate element of danger of fire?—A wooden building is a risk anywhere, but it is not a greater risk than you would find in any other part of the city.

J. CAMI'BELL.j

3

1.— 14.

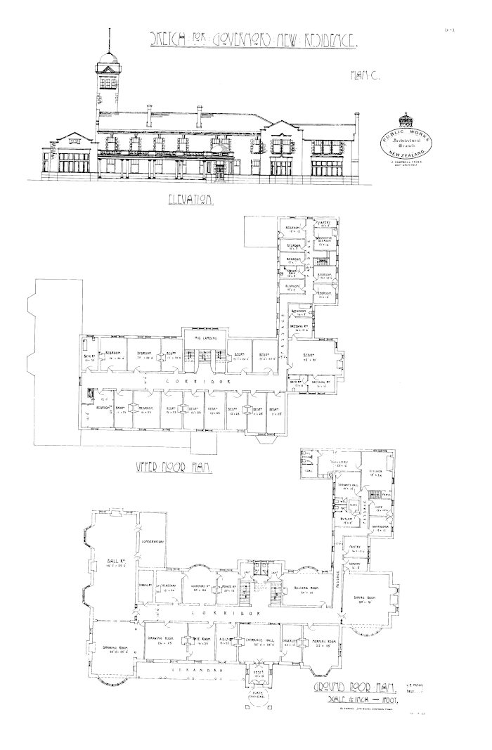
55. The new buildings seem to go right up to the old portion?— There is 40 ft. space. Those are future buildings. The pink colouring shows the buildings that could be erected, leaving the old building standing. . This plan proposes that there should be buildings erected both ways. 56. Mr. It. McKenzie.] Would there not be a lot of waste space? —That is for air-space. 57. Mr. Barclay.] Are those arcades drawn only on the assumption that the building is removed altogether I—Yes.1 —Yes. 58. Mr. W . Fraser.] Supposing the time came when you removed the building, would you not get much more if you put a street right through the building ?—I do not think so, because the distance between these two streets is now only 423 ft. If you put a street through there you would necessarily have narrower buildings, and you would have a narrower space for light than I have shown here. 59. Would not the wells be liable to become courtyards, and be liable to become receptacles for dirt and rubbish?— Not necessarily. You must have wells in every city. 60. Hon. Dr. Findlay.] Is the proposed scheme as good as you could devise if there were no buildings on the block at all? —I think so. Ido not think you could get a larger number of shops in any other scheme, and it seems to me that for revenue purposes shops would be suitable. It would mean that the arcade would attract attendance more than open streets would. People coming from the railway-station would go through and get shelter, and pass through the shops in preference to going up Bunny Street. 62. Right lion. Sir J .■(}. Ward.] However, it is quite certain, apart from the question of the suggested arcade, that there are four frontages to the streets available for leasing purposes now — the portions coloured pink I —Yes. 63. And by eliminating the two front wings of the present Government Buildings it would allow the rest of the Government Buildings to remain intact for departmental purposes if required ? —Yes. 64. The Chairman.] What is the suggested width of the arcade? —Thirty feet. 65. Whether we have a street through, as some members think advisable, we ought to have a space there at any rate of a chain wide? —It is not proposed that there should be vehicles going through, or other than foot-passenger traffic. 66. Hon. Mr. Carncross.] What is the width of these frontages? —50ft. to Lambton Quay, and 45 ft. [Plan marked " C " produced.] 67. The Chairman.] What is this plan?— This is a sketch-plan of an outline of a new Government House. It is only a plan with no elevation sketched out, because this depends very much upon the site. 68. Eight lion. Sir J. G. Hard.] We require to have before us what is the suggested cost?— That is the only value of this plan, but it applies to no site at all. 69. The Chairman.] Taking this plan which you have roughly sketched, what expenditure do you contemplate under ordinary circumstances? —We aimed at planning a building which would cost £25,000, but I find this would cost about £30,000. The building expenditure could easily be reduced. We provided for twenty bedrooms, without servants' accommodation. 70. Mr. II . Fraser.] How many are there in the old building?— Very close on that number. The accommodation here, shown together with the bedrooms, is about the size of the present house. 71. The Chairman.] In connection with the Governor's residence, what is the area you have provided for the public room—the ballroom? —I have provided an area a great deal in excess of the present. 72. Eight Hon. Sir J. G. Ward.] What is the area you suggest now?—3,2ooft. of floor-space for the ballroom and two drawing-rooms. 73. The Chairman.] What is the space at present occupied by the two Chambers of the Legislature?—2,2oo ft., as against 3,200 ft. . 74. It is just about a half more?— Yes. 75. Would you give us the size of the new drawing-room as compared with the existing draw-ing-room—the ballroom?— 67 ft. by 25 ft., as against 43 ft. by 24 ft. It is a half longer and one foot wider than the present ballroom. 76. Right Hon. Sir J. G. Ward.] My own idea is .£25,000 for a house for the Governor: according to the estimate suggested, would that be in brick, concrete, or stone?— Brick and stone. 77. In comparison with the present building, it would be fireproof? —Yes. 78. You think you could build that for £25,000? —As sketched here it would be £30,000, but 1 could curtail some of the bedrooms. 79. Well, now, Mr. Campbell, will you look at plan DB, sheet No. 3. What do you estimate would be the cost of the alterations on the old Parliamentary Buildings site as per sketch-plan?— £165,000 to restore the old buildings and erect the proposed new buildings. 80. Would you indicate to the Committee what the colourings on this plan signify?— The portion coloured yellow denotes the library building that was practically untouched by fire. The portion coloured blue denotes the buildings that were partially destroyed by fire—the brick portions— and the portions coloured pink are clearly new buildings. 81. Now, if the buildings are erected on the old Parliamentary Buildings site according to this plan, could the present brick buildings be utilised safely?—No, I do not think they could. I have examined the walls caiefully, and I find that the mortar has suffered very much by the fire. They would not be reliable. 82. So that in building on that site the old building would require to be pulled down? —Yes. 83. Now, in regard to the library, which is marked yellow, that I understand is intact?— Yes, perfectly intact.

1.—14

4

J. CAMPBELL.

84. So that no renewals would be required? —That is so. 85. The Chairman.] Then, in point of fact, the whole of that portion marked blue on the plan would become practically pink —new buildings?— Yes. The foundations may be made use of, but that is all. 86. Might Hon. Sir J. G. Ward.] Would you explain to the Committee the disadvantages or difficulties in the way of providing a new Parliamentary Buildings upon the old site?— Well, the disadvantages are shown on the plan. You can see that the present communication between the different parts of the building is not very good : the site is too narrow, and the lighting is bad. We should have very imperfect lighting from the roof, which means deficient ventilation. You must have windows in a building to get healthy ventilation and light. That is a great drawback to that site. Then there are the difficulties with regard to the differences of level : Sydney Street is 20 ft. below the level of the major portion of the site. That means that if you build along Sydney Street frontage you have got rooms that are against the clay bank, and those rooms could not be used for any important purpose. In Frain's contract the lower story was to be used for storage purposes for Bellamy's; and by building along Sydney Street you would have very imperfect lighting. 87. According to this plan of building on the old site there would be no possibility of transit for vehicles of any sort round the building?—No, that would be impossible. 88. 'The Chairman.] What is the estimated cost of putting the building on the old site?— £165,000. 89. Mr. W. Fraser.] Was there not an entrance from Sydney Street? —Yes, but vehicles could not be driven round the buildings. 90. But there was an entrance?— Yes, certainly. 91. And there were two entrances by which vehicles could approach the building?— Yes. 92. Right Hon. Sir J. G. Ward.] But there was not any transit within the grounds for vehicles? —No. 93. Well, in erecting a brick building of this kind in Wellington is provision made for earthquakes ?—Yes, a steel building. 94. That is included in the estimate? —Yes. 95. Would it be safe to put up a building of that kind there without making provision for earthquakes ?—I think not. 96. Will you state what class of ventilation there would be in the building?— Many of the rooms in the centre of the building will be very difficult to ventilate; they would require to be ventilated by means of fans. There are no windows in many of the rooms; there are skylights, but they do not give efficient ventilation. 97. How many air-wells and light-wells have you provided in this building?— There would be two light-wells. There is a courtyard in connection with the new portion fronting Molesworth Street, and also a small light-area behind Bellamy's and the Committee-rooms on the Sydney Street side. 98. Mr. hard.] And then another by the billiard-room? —That is partially closed; that is very small. 99. Right Hon. Sir J . G. Ward.] With regard to the accommodation you have suggested in this building, have you suggested anything more than would be actually required for the use of Parliament? —I think not —just about the accommodation that is necessary, except that the librar}' is to be extended. We have extended the library more than half its present area. 100. Mr. W. Fraser.] That would be two-story?— Yes. As a matter of fact, it would be three. There would be a basement in front, because the land is falling rapidly to Molesworth Street. I have shown the building extending out about 80 ft. to Molesworth Street. 101. Mr. Barclay.] If more rooms or more buildings were required it would be very difficult? —If more buildings were required it would be almost impossible, because the site is shown almost covered. 102. Right Hon. Sir J . G. Ward.] Now turn to plan DB, sheet No. 2. What is the estimated cost for the building shown upon the present Government House site ground?—,£lBo,ooo. 103. Does that provide any more accommodation than is shown on the old Parliamentary Buildings site? —It shows additional accommodation, and it is very much better arranged, but there is not much additional accommodation. 104. Mr. W. Fraser.] How many rooms does it provide —to what extent is it larger?—lf you look at the sketch of elevation D 8 you will see there are three good floors. What is shown as a basement is really a story 14 ft. high, and there is excellent accommodation on that floor on the basement. 105. Mr. R. McKetizie.] Will it be above the surface of the ground?— Two feet above the surface everywhere. It is really the ground floor, which extends back to about a third of the depth of the building. 106. The Chairman.] With regard to the Committee-rooms, how many extra would there be? I should think you would have quite a dozen additional Committee-rooms compared with the number shown on sheet No. 3. 107. Right Hon. Sir J. G. Ward.] That is as compared with the plan of the building on the old Parliamentary Buildings site?— Yes. There would be twenty-six rooms in the floor above, and in the floor -beneath there would be fifteen. There would be forty-one additional rooms as compared with the plan on sheet No. 3. That is, ,in addition to the number of rooms in the library and for Bellamy's. 10S. You say there would be forty-one additional rooms? —Yes, for Committee-rooms, Ministerial rooms, and members' rooms, in addition to those shown on sheet No. 2.

1.— 14.

J. Campbell.]

5

109. Mr. hard.] I should like to know whether the present House of Representatives on sheet No. 2 is any smaller than that in the old House was?—lt is exactly the same size. 110. And that in the Legislative Council is larger?— Yes, that is larger. 111. I see that on both plans we have looked at you have practically made both Chambers the same size? —Yes. it is only a sketch-plan. I have been considering that, and the question is, in making the drawings, whether it would not have been better to have made the Legislative Council a little smaller and the House of representatives a little larger. 112. Mr. W. Fraser: If one is smaller than the other, it may be the reason for raising an insuperable bar to any increase in the future. 113. Bight Hon. Sir J. G. Ward: On that site there is any amount of room to extend anywhere. 114. Hon. Mr. Paul.] May I ask what is the accommodation for the public in the strangers' galleries in the new House?— That has not been determined — this is only a sketch of the main building; but there will be an abundance of space in the galleries. They will be deeper than the old galleries were. 115. Mr. Barclay.] And on this new site there is room to extend? —Yes, there is certainly room to extend. According to sheet No. 1 you can see there is any quantity of room towards Museum Street for extension. 116. Mr. E. McKenzie.] It is important that the Chamber should be increased in size to provide for a larger number of members for future generations who may decide to increase the number. Could this be done?— Yes. 117. Eight Hun. Sir J. G. Hard.] According to this plan of the building upon the Government House site, there is room for extension in the future both towards Museum Street and Bowen Street ?-—Yes. 118. There can be no question that extension can be made if it is necessary?— Yes. 119. Now, does this estimate of £180,000 provide for the building being on fireproof lines?— Yes. 120. With regard to the floors, what is it suggested they should be made of? —Concrete floors, fireproof throughout, and steel construction throughout. 121. How about the lighting and \entilation in this proposed building?— The ventilation would be as perfect as it could be, and also the lighting, provision being made for window ventilation. 122. Is there direct window ventilation in both Chambers?—ln the upper portions of the Chambers. There are no windows in the lower portions, but you could direct fresh air from the courtyards right into both Chambers. 123. You could have direct fresh air from both sides? —Yes, a direct course of ventilation by means of tubes. 124. The ventilation in the proposed building would be better than in the old building? — Very much better. 125. Mr. E. McKenzie.] Could you design this building so that we could get a glimpse of the sunlight?— With regard to the House of Representatives, in which there are late sittings, and which is occupied very much longer than the other Chamber, I have shown that on the sunny side of the building, so that you will get the sun practically all round it, and it will be very much warmer. It will be very much less exposed to the cold southerly. 126. Mr. Massey.] I should like to know whether it is possible for the sun to reach the Chamber of Representatives at all as proposed by this plan of the building on the Government House site t —You mean direct by the windows? 127. Yes?— That is quite possible by windows. You could have direct sunlight through the lantern or dome, and you could also have windows on the north-west side of the building. You could have clerestory windows on the north side, and you could have the sun streaming through that building. That was the object in keeping the House of Representatives to the north side. 128. Mr. Barclay.] Is it intended that the middle portion shall be one story, or two, or three? —The House, of course, must be one story, and so must the lobby. 12!). Eight Han. Sir J . G. Ward.] But equal to two stories of the main building?— Yes. 130. And in this proposed building on the Government House site you would have ventilation direct from outside into both chambers, and in the old building you could not?— Yes. If you did get it in the old building it was from the south side, and members used to complain of it. You could have these windows open in the public galleries without getting the cold southerly wind into the House. The same could he said of the Upper Chamber, because it is also screened by rooms on the south side, but it would not get so much sun as the House of Representatives. Still, it would get better ventilation than was possible in the old Chamber, because it is screened from both sides. 131. Mr. W. Fraser.] In the event of this plan being adopted, would it not be possible to increase the size of the House of Representatives by taking it right through to include the back portion, the corridor behind it, and also the Speaker's rooms, and then put the rooms behind as a wing?— That is quite possible. 132. In the future, I mean? —Yes, that would be quite possible, I think. If you look at sheet No. 1 you will see that the whole building might be kept a little nearer Bowen Street, so as to leave a greater space next to Sydney Street for future possible extension. 133. Without much alteration to the walls you could do that?— Yes, that could quite easily be done. 134. Eight Hon. Sir J. G. Ward.] Now look at plan D 8, sheet No. 1, the part marked dark pink. That is the portion which it is suggested at the moment should be built, with the existing Government House remaining, is it not? —That is so. 135. What is the estimated cost for building that pink portion? —£90,000 —practically half of trie whole building.

1.—14.

6

IJ. CAMPBELL.

136. And is the same provision made there for the light and air wells as would be the case when the building is finally finished?— Quite the same. 137. Then, the suggestion is that that should be connected with the present Government House? —Yes, the Government House should remain until that portion was completed. 138. By building that pink portion first, Chambers would be provided for members of both branches of the Legislature, except, I take it, that the Legislative Council would not be in the Chamber which they would finally occupy when the whole building was completed?— Yes, exactly so. The Chamber for the House of Representatives would be built, but there would be a temporary building for the Upper House. 139. Where would that be?—ln the north-west corner, in the front. HO. The Lower House would have the permanent Chamber erected, and in the meantime the Council would go in front of that light area opposite the Lower House Chamber, and once there we could go on with the proposed plan on the Government House site?— Yes. 141. Mr. W. Fraser.] Is the brown portion marked on the plan the area of the present Government House?— Yes. 142. Well, you could not leave the Government House intact, because the space where the new Chambers would be is right in the centre?— But it could be kept intact. [Explained on plan.] 143. The Chairman.] Could Parliament be kept sitting without being disturbed by this building going on? —Yes, that is quite clear. I might point out that the present bridge connecting the House with the library would be affected —we should require to make another connection with the bridge; but that is a minor matter. 144. Eight Hon. Sir J. e.JVard.] How long do you reckon it would take to erect the 90,000--pound portion of the House on the Government House site?—At least two years. 145. And how long would it take to complete the alterations to the old Parliamentary Buildings site?— About the same time. 146. Is there not much less work in the 90,000-pound job?— There is less, but still there is a lot of work to do. 147. How long would it take to prepare the plans and specifications for a job like this?— About six months for working-drawings. Of course, it would be necessary to consult the heads of the Departments in regard to details of accommodation. It would take two years to build from the time we commenced after getting the drawings. 148. Mr. li. McKenzie.] Supposing you were to offer a reasonable bonus to have it completed in twelve or eighteen months, could you not get it done—there is plenty of space on the ground ?— lam taking into consideration the general way building is conducted in Wellington. If you got an American contractor he would run it up in twelve months, no doubt. There are contractors here who would do it in less time, but in our experience that is the average time for large buildings. 149. Mr. Barclay.] Is the six months for the preparation of the specifications included in the two years? —No. 150. Bight Hon. Sir J. G. Ward.] If the Public Works Department were to take the job in hand, put on a number of men, and go fast about it, would they do it quicker? —Yes, much quicker. ll' we were to do it by day-labour we might make a start in three months. 151. Mr. Massey.] Is it not a fact that day-labour was a failure in connection with the old Parliamentary Buildings? —That was co-operative labour. 152. What is the difference between co-operative labour and day-labour so far as the labour is concerned? There would be no contracts, and no conflicts between the various tradesmen. In several cases by day-labour we have carried out works for 30 per cent, less than the lowest tender. 153. Bight Hon. Sir J. G. Ward.] As an architect, Mr. Campbell, which do you consider is the most desirable place of the two on which to erect this building?—l do not think any architect could have two opinions on the subject. I think one site is wholly unsuitable for the erection of an important public building, on account of the fact that one-half of the ground is made-up ground, the spoil from the excavation of Hill Street. It is also most unsuitable for the erection of an important public building, on account of its narrowness; and then, in addition, Hill Street is 20 ft. above the level of Sydney Street, the difference in the levels making the site unsuitable for the satisfactory erection of an important public building. I have never seen an important public building erected on such a site with such difference in the levels. If the building was erected there, you would have one part of the building overtopping the other, and, although you could have that in a departmental building, you could not very well have it in an important building like this. 154. Mr. W. Fraser.] In the event of our taking the old Parliamentary Buildings site for departmental buildings, would the building you are suggesting permit of another story being put on in the event of the accommodation not being sufficient in the future? —That could easily be arranged by making the walls stronger. _ _ 155. You have not provided for that?—No, not at present. It would mean a very trifling amount to be added to the estimate. IT)*;. Hon. Mr. Hall-Jones.] Each wall would have to be U in. thicker?— Yes. L 57. Mr. W. Fraser.] I want to know what the extra cost would be to carry one extra story up assuming the walls to be suitable? —The cost would be trifling. 158. Do you not think it would be wise to do so?— Considering the congested state of the buildings, it would mean less satisfactory ventilation; and I think, if you raised the buildings higher than shown on this plan, the question of lighting would come into account. 159. You propose to cover these wells in the light areas with white tiles?— With white enamel 160. What is the size of the wells?— The two larger wells are 80 ft. by 61ft., and the two smaller 48 ft. by 40 ft. That is to allow the sunlight to get in.

J. CAMPBELL.]

7

1.—14.

161. Mr. Barclay.] I should like to know whether it would be possible for you to give us an estimate of what it would cost to provide a number of members' rooms —small rooms, say 10 ft. by 12 ft., to which a member could take a constituent or any other person with whom he wished to speak, and in which he could do his writing. Would it be possible to give us an estimate of the number of rooms of that sort that could be provided, and the probable cost?—ln connection with the new building ? 162. Yes? —Yes, I could supply those particulars. l(i-'i. There would be forty or fifty rooms required? —Yes, I could supply the particulars. 164. Mr. Massty.~\ How is it that the plans for the building on the Government House site are so much more elaborate than the plans for the building on the old Parliamentary Buildings site? —That may be explained in this way : that the plans for the building on the old site were necessarily prepared subject to the building which already existed on that site. The present library building is not quite the best style of architecture, and I followed very much the style of the building already in existence. 165. That would not account for the colouring?—l see the colouring is a little stronger in one than in the other, but the Government Printer is responsible for that. 166. Right Eon. Sir J. G. Ward.] What is the distance between the Chamber of the House of Representatives and the Legislative Council in the old building and the distance between the two Chambers in the new building?— The distance between the two Chambers in sheet No. 2—that is, on the Government House site — would be 42 ft.—just the width of the lobby—and in the old building the distance was 154 ft. * Tuesday, 25th Atjgust, 1908. John Campbell further examined. (No. 1.) 1. Bight Hon. Sir J. (f. Ward. J I desire to know, Mr. Campbell, whether you have any further plans here ? —Yes, I have copies of a sketch-plan of the suggested new Government House. [Plan produced and put in, marked " Ex. D."j 2. Mr. W, Fraser.] I asked for the production of the old plans of the former building towards which they were working when the Sydney Street contract was cancelled?—l have them here. 3. The Chairman.] This plan of the suggested new Government House, I presume, assumes a level site, does it not? —Not necessarily level, but approximately level. 4. It is drawn for a level site? —Yes, quite so. 5. Eight Bon. Sir J. G. Ward.] In regard to this plan, I should like to ask what is the maximum cost according to the design of this plan?—£2s,ooo. 6. Is it as large as the present Government House?— The public rooms are larger in every case, but there are not so many bedrooms. 7. The Chairman.] It does not afford quite so many rooms?— Not quite so many as at present. 8. Mr. W. Fraser.] How many rooms short are there? —I think there are two bedrooms short. 9. The Chairman.] Have you been supplied with a list of the Governor's general staff and household ?—The bedroom accommodation is sufficient for the staff. The accommodation is also sufficient for the servants. There are fifteen bedrooms for all requirements in addition to seven servants' bedrooms. 10. Eight Hon. Sir J. G. Ward.] The chief point is this : Is the accommodation in regard to the bedrooms proposed in this new Government House sufficient for the permanent staff of the Governor judging by the staff of the present Governor and former Governors? —Quite sufficient. There are fifteen bedrooms for the family. 11. The Chairman.] As regards the accommodation required by the Governor for public functions, how does the proposed ballroom which is 66 ft. by 25 ft. compare with the ballroom of the present Government House?—lt is fifty per cent, larger than the present ballroom. 12. Do you mean in length?— Chiefly in length. It is lft. wider, with the bay windows additional. You might say the average width is 2 ft. greater than the present ballroom, and it is 20 ft. longer. It is practically a half larger than the present ballroom. 13. Mr. W . Eraser.] It is not wide enough—that was the fault?—lf you make it wider it would be almost necessary to make it double the width, because it is now only wide enough for one set, and if you make it any wider it should be made double the width, to accommodate two sets. 14. lion. Mr. Guinness.] Why cannot it be 10ft. wider? There is no reason why it should not be? —I have confined it within the estimate of £25,000. About £1,000 more would provide a ballroom 10 ft. wider. 15. The Chairman..] How does the superficial area of the proposed new dining-room compare with the superficial area of the old dining-room—the floor-space?— The new dining-room is proposed to be 866 ft. and the old one is 836 ft. —practically the same. 16. Mr. W. Fraser.] What are the dimensions? —The old dining-room is 38 ft. by 22 ft. and the proposed new dining-room would be 31 ft. by 28 ft. 17. Could not that dining-room be extended where the bay window is, and make it longer?— Yes, it could be extended both in width and length without affecting the cost materially or the general plan. It could go out another 10 ft. almost :it could be made 28 ft. by 41 ft. [The Hon. Mr. Guinness moved that the ballroom be widened to 40 ft., which was agreed to by the Committee.] 18. Mr. W. Fraser.] That would not affect the upper story?—No, not at all.

1.—14.

8

[.T. CAMPBELL.

19. Bight Hon. Sir J . G. Ward.] You would also require to extend the drawing-room to the same width, because they are both on the one side? —Yes. [The Hon. Mr. Guinness moved that the length of the dining-room be extended to 41 ft., which was agreed to by the Committee.] 20. Hon. Mr. Guinness.] What are the dimensions of the present billiard-room?— The present billiard-room is 28 ft. by 20 ft. and the proposed new room would be 30 ft. by 20 ft., and it has an additional bay window. 21. Right Hon. Sir J . G. Ward.] What is the size of the Governor's room in the proposed new Government House?— 22 ft. by 18 ft. 22. And the Governor's private room is—what, as compared with the old one?— The old room was 18 ft. by 13 ft. and the proposed new room would be 20 ft. b}' 13 ft. The Secretary's room is 20 ft. by 16 ft. 23. Mi-. Baume.] With regard to the drawing and dining rooms, when these are opened up they are practically one huge hall ?—Yes, we have folding-doors and projecting piers at the sides. 24. But they do not project very far?— No. In fact, we could do without them. 25. For instance, we have large meetings held at Government House, and I was wondering whether it could be so constructed that these rooms could be turned into a large hall or auditorium? —Yes, they could be made so. 26. Hon. Mr. Guinness.] These projections are slight—a few feet?— Yes, but they could be done away with altogether. 27. Mr. W. Fraser.J Are those doors to be constructed so that they can be lifted up?—No, folding-doors such as they have"in schools : they fold flat against the wall. They slide along a groove at the top and bottom, and fold flat against the wall. Those are the best for large rooms like these. I Plan of existing Government Departmental Buildings, showing how site may be utilised for the erection of shops, warehouses, or offices on Lambton Quay, produced, marked " Ex. B."] 28. Mr. W.Fraser.] In the event of a decision being come to by this Committee, how long would it take to prepare plans and specifications according to your suggestions?— For what building? 29. Calling for tenders for both Parliamentary Buildings and Government House?—lt would take quite six months. 30. Would it be the same with regard to the Parliamentary Buildings as with the Government House?— They would go on concurrently. 31. Mr. Massey.] Would there be any delay in calling for competitive designs?— Yes, there certainly would be a delay. •'S2. What would the delay amount to? —I think you would require to give them four months additional. 33. Do you mean to say it would require ten months to do it? —If there was competition it would require at least ten months. 34. Hon. Mr. Guinness.] And do you mean to say that for the Parliamentary Buildings only it would take ten months I —Yes. The architects would require at least four months for competitive drawings, and then they would require six months to prepare the working-drawings. I do not think any firm of architects could do it in ,a shorter space of time than that. It took three months to prepare competitive plans for additions to the Wellington Hospital, and the expenditure was only £8,000. 35. Mr. Baume.] What would be about the extra cost involved in calling for competitive designs?—lt would be really the amount of the prizes, that is all. 36. The Chairman.] And the advertising?— Yes. 37. And the preparation, I suppose? —That is exclusive, of course, of the architect's commission of 6i per cent. Jackson Palmer examined. (No. 2.) 1. The Chairman."] What is your name?— Jackson Palmer. 2. You are Chief Judge of the Native Land Court? —Yes. 3. You have been asked to attend this Committee to give some information with regard to the accommodation required by your Department?— Well, at the present time, down in the Government Buildings, where we are, I have unrecorded titles representing between five and seven million acres of land. If they were burnt we should have no chance of reconstructing them again. They represent some millions of money, and therefore we must have a strong-room. I wrote to the Government two years ago telling them I did not like the responsibility of all that in a wooden room. 4. And therefore you require new offices with a commodious strong-room?— Yes. 5. Have you any idea of the area you would require?— Well, it will require to be a complete room for these, because there are three hundred minute-books, and then we have got all the Native-land purchase files in connection with these since 1870. They will require to be in a complete strong-room. The files cannot be put away, because they have to be searched daily, and have to be open to the public. 6. Then you would require special accommodation, with pigeon-holes easily accessible for all those things?— Yes. 7. And, in order to do that, have you any general idea as to the size of the strong-room you would require for that purpose?— Well, the strong-room would require to be a room much bigger than this room we are in, and it would require to be absolutely fireproof. 8. Assuming this room to be 20 ft. by 12 ft., that would not be large enough? —No. The room I have got them in is 36 ft. by 15 ft., and that is not large enough.

j. PALMEB.]

9

1.—14.

9. Well, would you require a room double that size? —I should want it to be three times as large. The public have to go into that room to search, and sometimes there are as many as eight or nine people there. 10. At present you have a room 36 ft. by 15 ft., which gives you 540 ft. of floor-area, and you want three times that: you would want a room of about 1,620 square feet of floor-area?— Yes. At present we have everywhere people searching titles, and they may abstract titles against themselves, and we have not a chance of watching them. We have lost some titles. 11. Now that only refers to the strong-room?— Yes. 12. Then, how many rooms or offices do you want in connection therewith : I suppose you want all the offices together?—We have to have one room for the Registrar, and there should be a room for myself. At the present time Mr. Sheridan and myself share a room. The Judges want a room independent of mine, and then there should be one long room for all the clerks. 13. Then, do you want a waiting-room for witnesses or anything like that for persons in attendance? —We have not got a Court-room or anything else. We want a Court-room. 14. Of what size?— About four times as big as this room. Sometimes there are as many as eighty or ninety Maoris present at the one time. 15. And you want a room about 60 ft. long and 30ft. wide?— Yes. Hi. And you want a witnesses' room?— Yes. 17. And Councils' room?—At the present time the Council sits in the office. The Board could sit in the Court-room, but at present the Councils have no room and they want an office. The Maori Boards have also no office. 18. You want a separate room for the Maori Boards? —Yes, and clerks' room for the Board and Councils' room. 19. Any more?—We should also require a room for the Land Purchase Department, and then another room for the interpreters. 20. Then altogether you want a strong-room, Registrar's room, Chief Judge's room, Mr. Sheridan's room, Judges' room, clerks' room, witnesses' room, Court-room, Councils' room, Maori Boards' room, Land Purchase Department's room, and interpreters' room?— Yes. 21. That would give twelve apartments including the Court-room?— Yes. 22. And how many apartments have you now? —We have got four—one Mr. Sheridan and I share, one for the clerks, one for the titles, and one other room. 23. Mr. Barclay.] Would it not be better to have a separate building for the Court?— Yes, if we could get it. We have only got one Court in the whole of New Zealand for Native-land business. 24. Would it not be a good arrangement to have merely the departmental offices in the building that is contemplated, and that the Court and that portion of the business should be in a separate building?— The Native Land Court and Board Room would be much better in a separate building, but not the other offices. 25. Hon. Mr. Hall-Jones.] Does your Court invariably sit in your room?— Yes, except when they are sitting in the organ-loft in Sydney Street. 26. You mean the Primitive Methodist church? —Yes, there is a loft behind there. 27. That is frequently used for meetings of the Native Land Court?— Yes. 28. Is it large enough?— Nearly, but not quite sometimes. 29. Mr. Massey.] Are your offices situated now in what is known as the big wooden building—■ the Departmental Building?— Yes. .'SO. Would you prefer that your Department should have a building to itself rather than have rooms in the new building which is contemplated?—lf we were anywhere near the new building it would be better ; for instance, if we had a wing, but if we had to remove the papers any distance it would be too far away. 31. Mr. Barclay.] Well, you know the present accommodation of tho Deeds Registry Office in Wellington ?—Yes, down by the Post Office. ' 32. Would the accommodation they have there, or something equivalent to that, be suitable for what you require for your books and records? —Yes, that would be about it. 33. Only so far as your books and records are concerned? —Yes. 34. And I need hardly ask you whether you consider it is absolutely necessary that this should be done at the earliest possible moment?—l do consider it necessary. Two years ago I wrote to the Government telling them of the responsibility and the risks there were, and of the large amount of money at stake. 36. Mr. W. Eraser.] Do I understand you to say that those valuable records are kept outside of a strong-room at present?— Yes, there is no strong-room. 36. Are they on wooden shelves?— Yes, on wooden shelves, and some of them are getting torn now because there is so little room on the shelves, and the Judges' names have had to be pasted on again. 37. Do you not think that that is a state of things which ought to be remedied at once by building a strong-room into which those records could be put pending the erection of the new building? —I asked for it to be done. 38. But do you think a strong-room should be provided at once, even although it be a temporary one?— Yes, I do. 39. Would it be feasible if a strong-room were erected in the vicinity of the present rooms to stow these deeds in there and take-them out as you wanted them?—No, not easily, for this reason: that it is the search-room for the public. The public have the right to come in on payment of a fee, and you want to be there every day. You want the shelves in the strong-room altogether. 40. But if a fireproof room were erected in which these documents could be stored and also search made when required, would that not be advisable? —Yes, that would be the most suitable if we could get that. 2—l. -14.

1.—14.

10

J. PALMER

41. When you were asked just now whether it would be better to have a separate building for this Department or whether it would be better to have a wing of the proposed Civil Service building, you said that you should not be too far away. What did you mean by that I—Well,1 —Well, other Departments are continually referring to us, and if we were a long way off it would mean messengers continually going from one to the other. 42. What other Departments?— The Lands Department a great deal, the Public Works Department and Public Health Department very often, and the Old age Pensions Department are continually coming in for searches, for documents, and continually referring to us. 43. Hon. Mr. Hall-Jones.] I should like to know whether the Native Department has any strong-room accommodation in the departmental wooden building at all? None whatever. Tuesday, Ist September, 1908. Horatio John Hooper Blow examined. (No. 3.) 1. The Chairman.] You are Under-Secretary for Public Works?— Yes. 2. You have been asked to attend here this .morning, 1 understand, with a view of stating what accommodation your Department requires, how you are situated at present with regard to accommodation, and what further accommodation is wanted. The Committee would also like you to state generally the position of the several public departments in relation to the present offices —whether there is sufficient accommodation, and, generally, what further accommodation, if any, is required? —Well, considering the present Departmental Buildings were erected thirty years ago for the accommodation of the Government staff as it existed then, it is manifestly too small for the staff that exists to-day. Since the Departmental Buildings were elected separate accommodation has been provided in the new Customhouse for the Customs, Marine, and other Departments ; the Railway Offices have been erected, providing accommodation for that Department, and the Post and Telegraph officers have been removed from the Departmental Building and accommodated in the Post Office. Notwithstanding that, we are renting buildings at the present time. 3. There are also new buildings being erected for the Public Trust Department?— But that is an outside trading Department, and is hardly regarded as part of the Government service. It is on the same footing as the Government Insurance Department, which has to provide buildings for itself or pay rent. The Public Trust people are paying rent where they are. The Government Insurance Department in some places is paying rent, and in other places is letting offices. The number of officers accommodated in the Government Buildings is 670. Only comparatively recently the accommodation was extremely congested, but the addition of the new wing at the north end has relieved the pressure, and I do not think there is now congestion in any Department. Nevertheless, no single Department has any more space than it needs, and to provide for the annual growth of the Government service it is obvious that further accommodation must be provided again at no distant date. Furthermore, the accommodation that we have is not really sufficient for the staff as now employed, as the Government is paying in rents something over £3,000 for office accommodation in Wellington. 4. Then you consider that in the very near future extended accommodation will necessarily have to be provided for the public service?—As a measure of economy, I think it would be wise to erect further buildings at once. The interest on the cost of a new building would probably be less than the amount we are now paying for rent. 5. Have you formed any opinion as to the expediency of making further additions to the old'wooden building, also in wood?— Yes, I have a very strong opinion on that point. I hope we have made the last addition to that building. At present we have the majority of our eggs in one basket, and the calamity that woidd happen to the public service if that building were to be destroyed by fire is too awful to contemplate: it would paralyse the whole machinery of Government. 6. Is it possible to extend that building so as to provide sufficient light to the rooms, and so on? It has been extended twice already, but is it possible to further extend it?— Yes, it is possible; the wings have already been lengthened, and could be lengthened further. 7. And would still give sufficient liirht and air? —The circumstances would be exactly similar. We could prolong the wings to the boundary of the land if necessary, and there would be just as good light as there is to the existing portion. 8. You mentioned that some Government Departments were paying rent up to the amount of £3,000: what are those buildings, and where are they situated ?— There are offices in Menteath and Beere's building, Ballance Street, rented for the Old-age Pensions Department at a rental of £70 per annum; offices in Routh's building, in Featherston Street, rented for the Electoral Department at a rental of £340 per annum : offices in the Wellington Investment Company's building, on Lambton Quay, rented for the Friendly Societies' Department at a rental of £200 per annum; a house rented at No. 1 Hill Street for the Public Works Department at a rental of £192 per annum, which' includes furnishing, fuel, light, &c. : offices in Butler Bros.' buildinp, rented for the Land and Income Tax Department at a rental of £250 per annum: offices in St. George's building, in Panama Street, rented for the Inspector of Weights and Measures at a rental of £65 per annum ; offices for the Registrar of Births in the Government Insurance building, £135 per annum—but perhaps as that is paid to another branch of the Government it should not be included. There are also offices rented for the Agricultural De-

H. J. H. BLOW.]

11

1.—14

partment in Wood's building, at a rental of £100 per annum, and the Labour Department has extensive offices in Customhouse Quay and Lambton Quay at a rental of £620 per annum. The Tourist Department rents rooms in Panama Street at £600 a year, rooms in Nathan's building at £80 a year, and rooms in the Star Chambers at £65 a year. 9. 11.011. Mr. Guinness.] The Tourist Department had rooms in three different places?— Yes. The Health Department rents rooms in Brandon Street at a rental of £260 per annum, and the Marine Department rents offices on Customhouse Quay, for Captain Edwin and his staff, at a rental of £140 per annum; and, In addition to those, the Postal Department rents several suites of offices, but I have not taken those into consideration, because they are all temporary, and will be given up when the new General Post Office is erected. 10. The Chairman.] Is that the complete list? —Yes, that is the list as far as I know. It is quite complete as far as the rentals paid by the Public Works Department are concerned, but as regards the rentals paid by other Departments I cannot say for certain that the list is complete. 11. Right Hon. Sir J. G. Ward.] The total is £3,117? —Yes. 12. The Chairman.] Now, in the event of new Departmental Buildings being erected elsewhere, so as to relieve the possible future congestion of the buildings on Lambton Quay, have you formed any idea as to which Departments could be most conveniently moved first? —No, I have not gone into that question. L 3. I wanted to arrive at what accommodation would be required. Supposing the Public Works Department were removed to a new building, what accommodation would that Department require?— The Public Works Department would require at least as much room as it at present possesses, and a little more. 14. That would mean, how many rooms?—Of course, how many rooms is a question which depends on the size of the rooms. We have now one room 42 ft. long and 33 ft. wide in the present buildings. If all the rooms were of that size we should not require many. I.think we have about sixteen rooms at present in the Departmental Buildings. 15. Is that including the strong-room?—No, I am not counting the strong-rooms. 16. One would be necessary?—We use three at present. Our strong-room accommodation must be extensive. All our plans, which run up to many thousands now, must be taken care of. The plans are worth from £1 to £2 a sheet, and there are all our signed contracts, besides the books, for which we need extensive strong-room accommodation. 17. Hon. Mr. Guinness.] But those contracts become obsolete after six years?— They do not become obsolete for our purposes; they often have to be looked up, as members are continually calling for returns. 18. The Chairman.] It means that in the event of further accommodation being provided for the Public Works Department you would want sixteen rooms in addition to strong-room accommodation I —Yes. 19. You have three strong-rooms at present, but if it was large enough one would be sufficient? —Yes, of course. 20. Bight Hon. Sir J . G. Ward.] Have you formed any opinion as to the desirability of extending the present wooden buildings on Lambton Quay towards the back? —Yes, I have formed a very decided opinion that there ought to be no further additions to that building. We are in a very precarious position. I believe there is no building in New Zealand that is taken more care of from the point of view of fire-prevention than that building is, but, at the same time, it is the unexpected that often happens, and if that building were to take fire and were to be destroyed, the whole machinery of government of this country would be paralysed. 21. Are you in favour of a continuotis block of buildings as we have now in the Government Buildings even in the event of the erection of buildings elsewhere?—No, 1 do not think I am. I think even from a picturesque point of view separate blocks would be desirable, and also from the point of view of fire; but, of course, if the building were to be fireproof there would not be so much objection on that account. If the system were followed out of erecting a properly constructed fireproof building we should be fairly well protected from fire. 22. Is it or is it not a fact that many of the Departments in the Government Buildings, from the circumstances in which they are placed, are unable to, be provided with strong-room accommodation for their documents overnight?— Yes, that is so. 23. So that in reality every Department should have its separate strong-room leading from its own office for storing its documents in overnight? —I should prefer a fireproof building, and then every room would be a strong-room. All we want is protection from fire. We do not fear burglars. 24. But if the building were intended to be fireproof there would also be strong-rooms provided ? —Yes, for the more valuable documents. 25. Is it not a fact that many of the Departments have not got strong-room accommodation in the building now?— There is not sufficient strong-room accommodation. The Public Works Department has not got sufficient, and the bulk of our plans are not in the strong-rooms. 26. Have you considered at all the question of making provision by the way of extension for the future by erecting departmental buildings?— Well, if we were to be tied to the present site I should advocate the erection of a building that would serve for two or three Departments to start with, making that the nucleus of the new building. A complete new building, of course, could not be erected until the present one is moved out of the way. 27. Is there room on the present Departmental Buildings site to commence that?— There is not very much room, but still there is a fair area on the Featherston Street side by building up to the street-line. 28. That is where the Telephone Exchange is?— Yes. You would have to move the house of the Officer in Charge, and work back towards the present building.

1.—14.

12

[h. j. h. blow.

29. Have you formed any opinion as to which site would be the most suitable for the Parliamentary Buildings, the old Parliamentary Buildings site or the Government House site? —In my opinion there is no comparison. The old Parliamentary Buildings site is a very inconvenient site indeed. The Government House site is superior in every respect —it is larger, it is much more square in form, and it is fairly level. The old Parliamentary Buildings site is long and narrow, and the two streets that bound it and give it its principal frontage are at an extreme difierence in level. I suppose, without actually measuring it, there must be a difference in level of nearly 60 ft. between Sydney Street and Hill Street, which makes it extremely difficult to utilise the site to its fullest extent. You must waste a large part of your ground in a big batter to these streets, or else erect tremendous retaining-walls and basements, which would provide less useful accommodation and make the structure very costly. 30. Then, in your opinion, the Government House site which we are now on is much the better of the two? —Very much better. It is bounded by four streets, and a building here could be better lit, better displayed, and better served in every way, and the area is larger. 31. Have you considered the question from the Government standpoint or the Dominion standpoint of the suggestion of the Wellington City Corporation in regard to having a portion of Charlotte Street'devoted to them for traffic? —I hardly know how to view it from the Dominion's standpoint, but from the citizens' point of view the widening is a very desirable thing indeed. 32. Do you know what width the City Corporation has asked for?—l do not know, but I presume they require to make the street at least 66 ft. wide. Very few of the older streets in Wellington are 66 ft. wide, but'the Corporation is endeavouring to widen them when possible. 33. But the strip of land would be very valuable from a monetary point of view so far as the Corporation is concerned? —Yes. 34. And do you think the closing of Sydney Street could be considered a quid pro quo! —l am not in favour of the closing of Sydney Street. 1 think it would be distinctly disadvantageous to close Sydney Street, both from their point of view and also from ours. 35. In the event of the Wellington City Corporation requiring that strip of land in Charlotte Street, which apparently they think they ought to get for nothing, you consider it is a pretty valuable piece of land to hand over ?—Yes, and, furthermore, if the Parliamentary Building site is changed to the Government House site, I understand it is proposed to widen both Sydney Street and Bowen Street, and also Museum Street. 36. lion. Mr. Guinness.] Is not the Government Insurance Building also occupied by a number of private tenants?—l mentioned that the Government Insurance is an outside trading Department, and they spend money on buildings simply for the purpose of investing in property. They do it not only in Wellington, but also in Dunedin and elsewhere. 37. Are you of opinion that all Government Departments and offices—that is to say, those which are not considered outside trading concerns—should be located in one large building or several buildings? —I think it would be better to locate them in detached buildings, but there are some Departments of the Government service which are very closely allied, and no doubt it would be advisable to group them. 38. You have told us that in your opinion there is no comparison between this site and the old site for the erection of the Parliamentary Buildings?— That is so. 39. Well, do you think the old Parliamentary Buildings site is a suitable site on which to erect new Government offices? —It is not unsuitable, but it is not as good as the present Departmental Buildings site. 40. Do you think there is sufficient land on which Government Departmental Buildings could be erected on the old Parliamentary Buildings site?— Yes, I think there is ample land. 41. Mr. 11. Mackenzie.] Is it a fact that important State documents are kept in the Departmental wooden buildings because of insufficient strong-room accommodation I —Yes, to a large extent that is so. 42. Is there any reason why a new fireproof brick building should not be erected on the land along the frontages of the Departmental Buildings? —None whatever. I have already said, in reply to the Prime Minister, that I think the present Departmental site is the superior site for Departmental buildings. 43. But I mean, could additions be erected without interfering with the present building at all I —You could erect on the Featherston Street side a considerable building without interfering with the present building at all. 44. But there is considerable space on the other side? —The present building seems to stand 85 ft. from Whitmore Street, the same distance back from Lambton Quay, the same from Bunny Street, and from 80 ft. to 150 ft. back from Featherston Street. 45. Do you think it would be practicable to start a fireproof building on Featherston Street and work up to Lambton Quay?—l do. 46. In regard to the suggested proposal of putting the Departmental Buildings on the old Parliamentary Buildings site, I think you said you do not favour the closing of Sydney Street? —Yes, I do not think it would be advisable to close Sydney Street. 47. Without closing it, do you think there is sufficient area there to erect Departmental Buildings for the Government, say, for requirements for the next fifty years?— Yes, I think there is ample. 48. What is the area? —There is an area of nearly 5 acres. To be exact, it is 4 acres 3 roods 18 perches. 49. Do you think it would be a disadvantage to have the Departmental Buildings on that site? —1 think it is a very good site, but 1 do not think it is equal to the present Government Buildings site.

1.—14.

H. J. H. BLOW.]

13

50. Do you think it would be disadvantageous if we were to close up Sydney Street?— Yes, 1 do. The frontage along Molesworth Street is not one-sixth of that along Sydney Street. 51. But, supposing you closed Sydney Street to Charlotte Street just along the width of that ground, would there be sufficient frontage there with that portion thrown in?— There certainly would not. 52. Hon. Dr. FindlayJ] Would it not facilitate the shape and position of your buildings if you had the Parliamentary Buildings site contiguous to the Government House site? Does not the severance of the two pieces of land by Sydney Street create difficulties in the shape and position in regard to the erection of the buildings?—l do not think it does. If Sydney Street were closed you would have to provide some other thoroughfare in its place, and very nearly in its position, otherwise you would not have sufficient access to your Departmental Buildings. 53. That is on the assumption that there is a severance, but on the assumption that there is no severance you would have Molesworth Street, Hill Street, Sydney Street, and Charlotte Street, and you could put your buildings where you like, and you could have several frontages to the other buildings?— But I think the possibility of that hardly exists. You would not, for example, care for any of the Departmental Buildings to encroach on the site of the Parliament Buildings, and if that is not done you have no more land available for Departmental Buildings. 54. Mr. W. Fraser.] You mentioned that you had three strong-rooms in the present Government Buildings for your Department: do you consider that in the event of a fire breaking out in that building the papers in the strong-rooms would be safe from fire? —The strong-rooms are quite safe from fire, I think, if the falling portions of the building did not damage them. The walls are very thick —between 2 ft. and 3 ft. thick, I think—and they are furnished with suitable fireproof doors. There are no ventilators, so that there is no means of fire or gas gaining an entrance to the strong-rooms. 1 think they are perfectly safe unless the falling members of the building damaged them. If the building fell in very large sections it is possible that the strong-rooms might topple over, and thus be destroyed. 55. You mentioned just now that the old Parliamentary Buildings site was a very unsuitable one for erecting a new Parliamentary Building on?— Yes. 56. Would the same conditions not exist in regard to erecting the Departmental Buildings there? —1 do not think so. Possibly I may be wrong, but I have conceived the idea that a building in the nature of a Parliament Building should stand in its own grounds, and should not be built up to the street-line as you would do in the case of offices; but as for the Departmental Buildings Ido not see why they should not be built up to the street-line. In fact, that is the course I should advocate. 57. Are you aware that the contract which was cancelled some time ago did provide for the building going up to the street-line in Sydney Street?— Yes. 58. Was there any objection to that? —It turned out that the foundations on the actual streetline just where these buildings were to be erected were much deeper than were anticipated, and it added to the expense considerably. 59. That is not the point. You said there was an objection to the Parliamentary Buildings going up to the street-line. Would not that objection exist under the old plan that was approved o f} I think it did occur to the designer of the building, but he had to do the best he could to utilise the then existing structure. I do not think they would have been brought up to the streetline if the entire site had been clear and available for building on. 60. If Sydney Street were closed, and without intrenching at all upon the grounds on which it is proposed to erect the new Parliamentary Buildings, would there not be access to another large building-area there? It might intrench upon Sydney Street, for instance, but you would have access to it from Charlotte Street? —That is the only point of advantage that occurs to me. If Sydney Street were closed you would have the end abutting on Charlotte Street available for building on. 61. And also provide an entrance? —Yes. You would have to lay off what would practically be streets on your own property. 62. There would be access there? —You would, of have to have access. I said that if you closed Sydney Street you would have to provide what would be tantamount to another thoroughfare. You would require access by conveyance, and Sydney Street is narrow enough now, and I do not think you would be likely to provide a thoroughfare much narrower. If you lost the whole of that Sydney Street access it would be a disadvantage, and you would have to provide something in its place. 63. In regard to the site where the present Departmental Buildings are, you are of opinion that, instead of building one large building there or anywhere else, it would be better to have three or four separate detached buildings, on account of the risk of fire?—l think so; but Ido not attach much importance to that point if an entirely fireproof building is erected. 64. What do you call a "fireproof building "?—A building that is erected wholly of steel, stone, and other incombustible materials; floors of concrete and roof of concrete, with no timber in it. The roof of the new Post Office is to be in concrete. 65. Have you heard of other fireproof buildings being destroyed by fire I— So-called fireproof buildings. 66. Do you know the Polytechnic in London? —No, I do not. 67. Well, the whole building was supposed to be fireproof, and yet it was burned? —1 would not call a building fireproof unless there was practically no timber in it at all. 68. You think the present site of the Departmental Buildings is a better site for Departmental Buildings than the old Parliamentary Buildings site?—l think it is; but, of course, if the thing is to be looked at from an economical point of view, no doubt a large sum could be derived from the sale or lease of the present Departmental Buildings site.

1.—14.

14

[H. i. H. BLOW.

69. Hon. Mr. Paul.] Do you not think, Mr. Blow, that it would be a great convenience to the public if the Government offices were situated close together? — Yes, 1 do not think they should be very far apart. 70. And that your first objection that it would be safer from fire if they were built separately would be overruled by the convenience to the public? —1 do not think anything would overrule the first objection. Safety is the very first consideration, but it could no doubt be got over in another way, as it is possible to erect an entirely fireproof building. 71. Then, it would be better from all points of view if the Government offices were close together I —Yes, they should not be far apart; but it is a question of degree, 1 think : the Departments could be close together without being all under the one roof. 72. But we have to deal with the sites we have? —You have a site on which you could erect detached buildings. 73. You think that the present system of Departments being in different parts of the city is neither convenient nor wise? —There are some Departments that could not be housed in the Departmental Buildings. I think the Tourist Department would have to have a separate building. If you removed that Department it would be inconvenient to tourists, as most of them arrive by sea, and the offices therefore require to be near the wharf. 74. But do you think it is a mistake to house the Departments in different parts of the city? —Yes, they should not be scattered all over the city. 75. In giving that answer you recognise that that had to be done under the circumstances? — Yes. 76. But now that it is proposed to make a clean sweep, would it not be wise to have as many of the Government offices as possible on the one site?— Yes, I think so. 77. Bight Hon. Sir J. G. Ward.] In the event of the present Departmental Buildings site not being fixed upon as the place for future extensions for the requirements of the public service, how would you suggest that the present block should be utilised ? I understand that you have gone into the matter, and I should like you to give the Committee your views?— Yes, I made a suggestion. In the first place, I should hope the Government would not sell the site. I prepared a sketch-plan showing how the site might be divided into building-allotments. There are alternative plans. [Plans produced and put in, marked " No. 1 " and " No. 2 ".] Personally I prefer the proposal indicated on plan No. 1. The only point of difference is that in one plan I have provided for Stout Street being produced into Featherston Street: at present it is practically a blind street. Now that the railway-station for both the Manawatu and Government railways is to be erected on land close to the Railway Offices, it is important, I think, to produce Stout Street straight through to the station, and the allotments available on both sides of the street for leasing would be very valuable. The other plan shows that street omitted. Whitmore Street is 86 ft. wide, Bunny Street 80 ft. wide, and Featherston Street is 96 ft. wide. 78. On this plan No. 1 it is proposed to put a new street from Lambton Quay to Featherston Street —a street 66ft. wide right through the present buildings?— Yes. If the Parliamentary Buildings are erected on the Government House site there would be a good view of them from this new street. 79. So that your suggestion is that, according to Plan No. 1, on the present Departmental Buildings site there should be a street 66 ft. wide running from Lambton Quay to Featherston Street, and that Stout Street should run right through to Bunny Street?— Yes, 1 think that would be the best; but, of course, if you omit the extension of Stout Street the amount of land available for leasing would be increased a little. That is the only difference between plan No. 1 and plan No. 2. The land would realise a little more money on plan No. 2as compared with the other. 80. And in plan No. 2 it is proposed that there should also be a street 66 ft. wide from Lambton Quay to Featherston Street, but with no extension of Stout Street?— Yes. 81. What is the size of the allotments that would be available for leasing purposes?— They vary considerably. 82. How many allotments would there be?—l have prepared an estimate of what I thought they would produce by sale. I think this land if offered for sale according to plan No. 1 would realise .£196,580, which is made up as follows :— Plan No. 1. ! £ Lambton Quay, 360 ft. at £200 ... ... ... ... ... 72,000 Bunny Street (not including side frontage of corner lots facing Lambton Quay and Featherston Street), 150 ft. at £100 ... ... ... 15,000 Section at corner Featherston Street and Bunny Street (30 ft. to Featherston Street, at right angles), at .£l5O per foot ... ... 4,500 Stout Street, 330 ft. at £100 ... ... ... ... ... 33,000 131 ft. at £80 ... ... ... ... ... 10,480 Featherston Street, 120 ft. at £80 ... ... ... ... 9,600 Two sections at corners Featherston, Stout, and new streets ... ... 4,000 Section at corner of Feath'erston and Whitmore Streets ... ... 3,000 Whitmore Street, 150 ft. at £100 ... ... ... ... 15,000 New street, 300 ft. at £100 ... ... ... ... ... 30,000 196,580

H. J. H. BLOW.]

15

1.—14.

And if offered according to plan No. 2, £209,040, thus: — Plan No. 2. £ Lambton Quay, 360 ft. at £200 ... ... ... ... ... 72,000 Bunny Street, 180 ft. at £100 ... ... ... ... 18,000 Section at corner of Featherston and Bunny Streets (30 ft. at right angles by average depth of 36 ft. C in.) ... ... ... 1,500 Featherston Street, 148 ft. at £100 ... ... 14,800 Section at corner of Featherston Street and new street ... ... 2,500 Featherston Street, 128 ft. (right angles) at £80 ... ... ... 10,240 Whitmore Street, 360 ft. at £100 ... ... ... ... 36,000 New street 540 ft. at £100 ... ... ... ... ... 54,000 209,040 83. That is your estimate of what would be derived from the sale? —Yes. 84. Have you formed any estimate of what would be derived from rentals? —The rental is usually a percentage on the capital value. 85. And those statements show your estimates of the capital value?— Yes. 86. Mr. R. McKenzie.] Do you base that estimate on the present value of the land or on the value in ten years' time?—l think those are very safe figures indeed as present values, and if you look ten years ahead, then you w«uld receive much more than that. 87. Do you think it would be necessary for that building to stand there for another ten years —the present departmental offices? —That depends upon what the Committee decides. If you decided to erect the Parliamentary Buildings on the old site you could do so, and the Departmental Building would very well last another ten years. The building has been well maintained. It is considered that the maximum life of a wooden building is fifty years. 88. Hon. Mr. Paul.] Do you think it would be a mistaken policy to sell that site?— Yes. Bight Hon. Sir ./. G. Ward: As far as the Government are concerned, they have not thought of selling it—we are against it. Thursday, 3rd September, 1908. Horatio John Hooper Blow further examined. (No. 3.) 1. Right Hon. Sir J. G. Ward.] In connection with the valuation of the Government Buildings land which you gave on Tuesday, I should just like to ask you whether you had any valuers with you, or how you arrived at your valuation? There is a considerable difference between the valuation you gave and that given by Mr. Campbell on behalf of the Valuation Department?— May I ask whether Mr. Campbell's valuation is higher or lower? 2. Mr. Campbell's is higher : there is a difference of about £54,000? —I am very pleased to hear it, because that is exactly what I expected. I think I mentioned here before that I had based my estimate on what I deemed to be very safe figures, and I fully expected that Mr. Campbell's valuation would be in excess of mine. I should have been very much surprised if it had been the other way. 3. Is that your personal valuation? —It is my own personal valuation, and I may state that in matters of this kind —in valuations of land—Mr. Campbell speaks as an expert, and I should expect the Committee to attach more weight to his evidence than to mine. 4. The Public Works Department's valuer was not engaged to assist you in that valuation? —No. 5. The Chairman.] It is simply your own personal idea of the value of the land that you have given?— Yes, and the present value, without any prospective increase. 6. Right Hon. Sir J. G. Ward.] If you had the money, would you be prepared to pay an amount equal to your valuation for the land?— Yes, I should be prepared to pay the price if I had the cash. 7. Hon. Mr. Paul.] There is one point on which your opinion may be of value. You are acquainted with the library building?— Yes. 8. Do you think it could be adapted for office purposes for housing the Departments of the public service?—Oh, yes! I have no doubt of it. The rooms are splendidly lit, and all that would be required would be to partition the larger rooms, and I think they could be very readily adapted for office purposes. 9. Hon. Mr. Guinness.] You say that the valuation you have given is the present value?— Yes. 10. You know it would take five or seven years before you could get new offices put up to enable the Departments to shift, and what do you say would be the increased value of the land in five or seven years —do you think it would increase?—l think it would increase substantially. 11. What percentage? —The percentage is rather difficult to conjecture; but if we may take the increased value during the last five years as a criterion, I should think the increase would be 30 per cent. 12. The, Chairman.~\ You were asked by Mr. Paul as to whether you thought the present library building could be adapted for Government departmental offices, and you answered in the affirmative. I should like to know whether that building could be adapted for a museum—whether it would be suitable in the event of the library being transferred somewhere else? —Yes, I think the rooms would suit very well for a museum, but probably the building would require to be extended.

16

1.—14.

13. I mean, whether it could be used for part of it?— Yes. Another question would arise there, and that is whether the site is not too valuable for a museum. James Meacham Batham examined. (No. 4.) 1. The Chairman.} What is your position I—l am Registrar-General of Lands and Deeds. 2. You were asked to come here in order to give any information in your power with regard to your position as regards accommodation now for the business of your Department —whether it is satisfactory, where it is situated., and whether further accommodation is required or not. Where are you located now? —In the Government Insurance Building. 3. How many rooms do you occupy there?—We occupy eleven rooms, including strong-rooms. 4. Do the strong-rooms belong solely to your own Department, or are they used by other Departments?— Solely by our own Department. 5. And you have, how many?— Five strong-rooms. 6. How many officers have you to find accommodation for? —About twenty-eight. 7. Is the accommodation at present provided satisfactory and convenient in every way?— It is not sufficient for the public requirements, and it is very inconvenient for the departmental requirements. We have to deal with the public in very large numbers, at times there being as many as thirty people at the counter and" perhaps thirty people searching in the main strong-room. 8. And therefore further accommodation is very urgently required ?—Very urgently required. In my opinion, the present accommodation is unsuitable. The Department has outgrown the present accommodation. It was ill-adapted at first, and as the Department has grown rapidly the inconvenience is intensified. 9. And could not further accommodation be obtained within the present building that you are now in? We got a little further accommodation some four years ago, and I suppose when the Public Trust Office removes from that building we could get more; but it is not conveniently arranged for the head of the office, for the staff, or for the public. 10. Then, even if you did get further accommodation in the present building it would not meet your requirements? —It would not be satisfactory. 11. Then, in the event of accommodation being provided for you in another building elsewhere, what number of rooms would you require?—l think the accommodation should be as absolutely fireproof as possible, and the building should be so made as to amply meet the requirements for very many years ahead. Added-to buildings are not satisfactory; part of the building should be made and let as wanted. 12. Could you give the Committee any idea of how many rooms you would require if a building were erected to-morrow? —I can give the Committee a few figures which will show the rate at which our Department is increasing. There is something of the snowball element about it, because we do not destroy any of the documents, and they go on rapidly increasing automatically. The Department occupies eleven rooms in the Government Insurance Buildings; floor-area of the whole is about 385 square yards, and of this area about 140 square yards is taken up by strong-rooms. Rent paid £505 per annum; total staff, 28. The following figures will show the increase in the gross revenue of the Land Transfer Office: 1877, £1,743; 1887, £2,891; 1897, £5,670; 1907, £12,763. J3. Then, have you formed any opinion as to the suitability of one of the sites proposed? You have heard what has taken place before the Committee, and one of the sites suggested for the new building is the site recently occupied by the Parliamentary Buildings. Would that be a convenient site for the purpose of the public transacting their business with your Department ?—lt would be perfectly convenient to the Department, but perhaps it might not be quite satisfactory for the legal profession and the public generally, it being rather far out of the centre of the town. It is almost going back to the old site of the Deeds Registry Office. 14. It would be quite convenient for the Department, at any rate? —Yes. ' 15. And what is your opinion as to the necessities of the case—do you think it would be safe to put the large number of documents that you have in your charge in a wooden building?—lt would be most disastrous if any' fire occurred. It is difficult to speak on the subject without appearing to exaggerate the inconvenience which would be caused to the Dominion. 16. Then, you are of opinion that a fireproof building is an absolute necessity? —An absolute necessity, and I do not think the present building is fireproof. 17. You heard what was said just now with regard to the strong-rooms in the Departmental Buildings on Lambton Quay. The last witness spoke of the strong-rooms being quite safe, barring the possibility of the whole building collapsing. Do you think a wooden building with strongrooms as safe as those would suffice for your purpose, or would it be necessary to have a fireproof building? I would advise an absolutely fireproof building, and I think it would be economy in the long-run. It would be impossible to measure the inconvenience if a fire occurred in our Department. 18. Bight If on. Sir J. G. Ward.] In the building you are now in you are paying rental?— Yes. 19. How much? —£505 per annum. 20. -So that a building to meet the specific requirements of your Department, giving you your own accommodation in a fireproof building and your own strong-rooms, and to make provision for an increase even upon the ratio th*t you have just suggested—the rent that you are paying would be equivalent to 5 per cent.-on a £10,000 building?— Yes. 21. Assuming for the purpose of economy that the Government decides to have all the public Departments located either in one fireproof building or in a series of fireproof buildings almost adjoining each other, would it be any more inconvenient from the lawyers' point of view to go to the Parliamentary Buildings site as against the old Departmental Buildings site?—l do not think it would be, and with the tram accommodation it would be very trifling.

17

1.—14.

J. M. BATHAM. |

22. But from the point of view of concentration and saving of money in the way of rental, and having the buildings in close proximity to one another, the inconvenience the lawyers might feel for the time as against going from their offices to the Government Insurance Buildings could only be saved by building in the locality of the Government Insurance Buildings?— That is so. The profession, of course, are largely to be considered in the matter. They have to go to the Stamp Office in the Departmental Buildings, and then they have to come to our office to register their deeds. 23. So that they have two trips to make- —one to the Departmental Buildings, and the other to the Government Insurance Buildings?— Yes. 24. And by having the whole of the buildings put together that would be obviated in any case? —Yes. 25. Hon. Mr. Guinness.] You said you have only six rooms now in which you locate your twenty-eight officers : is it not a fact that a large number of the public are in those offices during the course of the day? —A very large number. 26. What would you say is the maximum number that you have in there sometimes?—l should say it frequently reaches two hundred to three hundred in a day. It is difficult at the present time for those of our stafi who have to go through the register books to make entries to get access to them on account of the crowd of people in the strong-room. 27. What would be about the maximum number that would be there at one time?—l should think it is not an uncommon thing for there to be twenty-five persons at the counter seeking to register deeds, and in the main search-rooms perhaps there would be thirty to forty at the one time making searches. 28. Hon. Mr. Carncross.] You say there are sometimes as many as thirty people searching in the strong-room? —-.Yes. 29. Who are those people? —Solicitors' clerks, solicitors, and the public generally. 30. They conduct the searches themselves? —Yes. 31. They do not have access to the documents?— Yes, they can under supervision. 32. Then, there must be some difficulty in controlling it if there are as many as thirty people in this small place?—lt is very inconvenient indeed. 33. Anybody with felonious intent might get away with some of the documents? —Yes. George Frederick Colin Campbell examined. (No. 5.) 1. The Chairman.] What is your position in the service? —Valuer-General. 2. Right Hon. Sir J. G. Ward.] You have made a valuation of the block on which the present Departmental Buildings stand? —Yes. 3. What is that valuation? —The total valuation made by the Department of the Government Buildings site, without the building itself, is £264,900. That is assuming, of course, that a certain time elapses in which to realise the block. Personally, I do not think the Government should sell any of the land. I think the best way of cutting up the block would be to run a street from Lambton Quay through to Featherston Street. The proposals which were put before the Committee by Mr. Blow correspond with the proposals of the Department for cutting up the block. The proposal according to plan No. 2, in my opinion, is the most suitable way of cutting it up. The total valuation of the block is assessed by the Department at £264,900, assuming it could be cut up in the way suggested with a 66 ft. street right through the centre of the block. 4. To make that clear, that is the total valuation of the Department in accordance with the suggested proposal on plan No. 2 submitted by Mr. Blow? —Yes. 5. With one street only from Lambton Quay to Featherston Street? —Yes. I have not confirmed the areas or values which he gave. The areas he has taken seem to be different from the areas I have taken. I have taken 90 ft. as the depth to each street, and I think he has taken different measurements, but the difference in area is not very marked. 6. It is a fact that I authorised you to make a special valuation of that property a short time ago?— Yes, in July last. 7. And that valuation you produce now is the outcome of your valuation made at that time? —Yes. 8. Were the valuations of the Department's officers utilised as well? —Yes. 9. So that this is a careful valuation? —Yes. 10. The valuation is not based on any prospective values?— There is taken into consideration the fact that the railway-station is to be built, and that Featherston Street will become an important street. 11. What I mean is that you are not making that valuation on the basis of what that property may be worth in a period of years?—lt is to-day's value under those conditions. 12. That valuation has taken into account nothing for the present building on that site?— It omits the present Government Buildings. 13. Hon. Mr. Guinness.] In other words, that is the unimproved value?— Yes. 14. Right Hon. Sir J. G. Word.] What would be a fair percentage for leasing purposes upon the value of that land? —It depends a good deal upon the conditions of the lease. If the conditions of the lease are favourable to the tenant, of course the rental may be a little bit higher than otherwise; but we generally take 5 per cent, on the unimproved value as a fair percentage. That is the amount fixed by law as the basis on which to make a valuation of leasehold interests. 15. Hon. Mr. Guinness.] Do you think that if the lease for those sections provides for the insertion of the clause known as the Glasgow lease, that that percentage is a fair rental?— Yes. 16. When would you have your revaluation —every twenty-one years, thirty years, or sixtysix years?—l should say every twenty-one years. 3—l. 14.

1.—14.

18

IJ. M. BA.THAM

17. Right Hon. Sir J. G. Ward.] Under the suggestion that is made for utilising that block in the interval until the time arrives for cutting it up, by cutting off the two front wings as suggested by the Government, the frontages would be available for letting purposes in addition to the £264,000? The .£264,000 includes the land on which the building stands. 18. The frontages of those sections right round the building would be available?— Yes, if of sufficient depth. 19. And the building could be continued for letting purposes if necessary?—l am afraid the depth in some places would scarcely suit for cutting up sections outside the present building. [Plan explained by witness.] 20. Mr. W. Fraser.] You have said, Mr. Campbell, that the present value is .£264,000. You see the building is there, and therefore the present value is one we could not deal with, and probably it would be six or seven years before the whole of the building would be removed. Supposing you were to rebuild, are the sections available for letting?— There are four corners and the Featherston Street frontage available. 21. Is the £264,000 the present value, or is it the value which the land would sell at when the building was removed —that would be some six or seven years hence? —It is the present value with the building removed. 22. It is not to-day's value?—No, not as it stands with the building on it. 23. Then, what date have you fixed upon as the date of selling?—l have allowed five years within which to realise. 24. And you are taking the probable rise during the next five years? —No, it is the present value. " 25. Surely you must have if you have allowed five years for realisation : you must have taken into consideration the probable rise during the next five years?—No, not necessarily. 26. Assuming the property will rise during the next five years, what do you think would be the realisation from the sale of this property?—l could not give any estimate of what the increase would be in five years. 27. Then you have taken it upon the present basis? —Yes. I wish to explain my statement that it would take five years in which to realise. The property would not be realisable all at once, because you could not sell all the sections in one day, and it is considered that probably it would be five years before the property would be sold, because there would be no demand for all these sections at once. 28. Hon. Mr. Paul.] Is it your opinion that this land should not be sold under any circumstances?—l think it would be bad policy. 29. You understand there is no suggestion made by the Government to sell this land?— Yes. 30. The Chairman.] I think you said that you calculated this as simply the capital value of the land at present, irrespective of the buildings? —No, not the capital value; the capital value would include the buildings. 31. Well, the unimproved value of the property?— Yes. 32. And you estimate the rental value at, say, 5 per cent, upon that?— Yes. 33. In other words, it means that if all the sections were made as indicated upon that plan they would bring in a rental of about £13,000 a year?— Yes. 34. Eight Hon. Sir J. G. Ward.] Taking the land as it stands, irrespective of the buildings, there are portions of it if necessary which could be let at once without interfering with the buildings at all?— Yes. 35. Would you be good enough to state what are the portions?— The frontages to Featherston Street and the corners of the block facing Lambton Quay. 36. And half of Whitmore Street?— Yes, there is also a portion of the Whitmore Street frontage. 37. Then, in addition to the areas that you state are now available irrespective of the building, assuming that further accommodation is provided elsewhere for the public departments, and that those two front wings are cut off, it is a fact that the balance of the Government Buildings such as would not be required could be utilised for leasing purposes ? —Yes. If those wings were cut off, that would give sufficient depth for leasing in the front. 38. Leaving the remaining portion of the wooden building available for leasing purposes?— Yes. 39. And in the estimate you have given you have not taken into consideration the value of the wooden buildings at all? —No, not at all. 40. The Chairman.] Have you sufficient accommodation for the Valuation Department?— Yes, quite; it was increased a year ago. 41. Hon. Mr. Guinness.] You say you valued that land at its present selling-value to-day?— Yes. 42. Do you think there will be any increase in that value in five years hence? —I do. 43. What percentage?—l could scarcely hazard a guess. In some parts of Wellington the value increases more rapidly than in other parts. 44. You say there will be an increase?— Yes, I think so. 45. Would it be 5 per cent, or 10 per cent.?—l could not say at all. George Fhederick Colin Campbell further examined. (No. 5.) 1. Right Hon. Sir J. G. Ward.] Regarding the valuations you gave to the Committee, I understood from you when you were here before that they were made up after yourself, as well as your valuers, had examined into the general position of the land at present occupied by the Departmental Buildings?— Yes.

19

1.—14.

G. J , . C. CAMPBELL.

2. In consequence of the difference between your valuation and that of Mr. Blow's, the Committee thought it desirable to ask both of you to attend the Committee again in order to ascertain whether you have any doubt about the valuations you submitted to the Committee before?—l have no doubt about the valuations —I think they are sound. 3. Have you looked into them since?— Yes. 4. Have your valuers looked into them since ?—One of them has, but the other I have not communicated with, as both work together, and each knows the opinion of the other. 5. You are quite satisfied that that is a safe valuation which you submitted of the Government Buildings land? —Yes. G. Mr. hard.] Do you know, Mr. Campbell, if there have been sales on the other side of Lambton Quay higher than .£2OO a foot—l mean in the same position as the Government Buildings?— Yes. There was a property bought in the other day at £270 a foot, but that was further down the street. 7. I think you admit that the values fall the further you get this way?— Well, I am not prepared to admit that altogether—it depends a good deal upon the situation. 8. But do you consider the land on the other side of Lambton Quay is worth as much as that on this side?—No, I have not considered it so in my estimate. Wednesday, 2nd September, 1908. AunwsTus Hamilton examined. (No. 6.) 1. The Chairman.] What is your position?— Director of the Dominion Museum. 2. Will you tell the Committee whether the accommodation that you now have for Museum purposes is satisfactory or sufficient? —It is neither satisfactory nor sufficient. 3. Is the building occupied by the Museum a wooden building?— Yes, a wooden building with an iron roof. 4. And therefore you are at the risk of fire?— Yes, at the risk of fire. 5. I presume you consider you have a valuable collection there! —The collection is not only valuable from that point of view, but it is irreplaceable. Man}' of the specimens which are there could not be replaced for any money. (i. So that in your opinion it is desirable that it should lie better housed —that is to say, in a fireproof building if possible? —Yes, I think mo. I think a fireproof building is absolutely indispensable. 7. Then, in regard to space, would the present space suffice, or would you require more?— I should require a considerable addition to the area I have now. 8. Have you any idea of the size of the building that you would require! — lt would be difficult to give you anything like an exact idea, but, speaking generally, I should say an area of about 200 ft. by 100 ft. or a little more would do for the building at present. !). How does that compare with the building j-ou have at present got?— That is about 50 per cent, larger. 10. Have you given any thought to the question of the most suitable site for a new building: should it be on the present site or on any other site somewhere near?—l do not think it should be on the present site. 11. Do you think a convenient or suitable site could be found in any part of the grounds surrounding the old House of Parliament! —I do. I think that a site could be found there with ease. 12. Would it be sufficiently convenient for the public?— l think so. I.'!. Do you know whether any plans have been prepared with a view to that contingency?-— Not that 1 am aware of. ■14. Right Hon. Sir J. (1. Ward.] You know, Mr. Hamilton, that a short time ago it was contemplated to erect the Museum or to utilise the building at Mount Cook for the Museum? —Yes. 15. In connection with the proposals now before tin's Committee the suggestion has been made by myself in Parliament that as an alternative the lawn-tennis ground behind the old Parliamentary Buildings would be a suitable site for erecting the Museum on. Do you know that site?— Yes, I know it well. 1(J. Of those two sites, which is the better? —I think on the whole the Parliamentary Buildings site is the better. 17. In connection with the site where the Museum is at present, the extension of the building that lias been authorised for the Mines Department prevents there being sufficient room for the Museum?— There is not sufficient room. 18. And there would be no inconvenience from the public point of view or from your point of view as Director of the Museum in carrying on the business if the building were erected on the old Parliamentary Buildings site? —There would be no difficulty in carrying it on there if the .iica was found to be sufficient — the site is perfectly suitable. 19. Do you know of any other suitable site in Wellington that the Government has?—No, 1 do not. 20. Hon. Mr. Sinclair.] Tn regard to the natural specimens that you have in your present building, would they preserve themselves better if in a new stone building! — Certainly. The safety from fire and the ordinary preservation would be much better in a proper stone building than in the present. 21. Are yon able to exhibit the specimens that you have now?—l cannot exhibit 50 per cent, of them.

1.—14.

20

[A. HAMILTON.

22. Hon. Mr. Carncross.] Is the present Museum built entirely of wood?— Yes, entirely of wood. The greater part of it has been built since 1867, and the timber is a good deal affected by the beetle. 23. Then, if it took fire would there be any chance of saving it? —There would be no chance of saving any of it. What would not be destroyed by fire would be destroyed by water. 24. Have you any protective measures provided ?—Yes; during the last few months the Government has placed a night-watchman on the premises, which was never done before, and the fire-alarms have been connected direct with the Fire-brigade Station. 25. And you say if there was a fire the loss would be irreparable?— Yes. 26. The Chairman.] You have mentioned that a large-enough building could be built on an area of 200 ft. by 100 ft. ?—I should not like to bind myself down to that —that is a rough estimate. 27. You do not, in giving that estimate, contemplate a single-story building?—No; that would be providing for a three-story building, as against the old plans, which were for a two-story building. 28. A building covering that area would require to be three stories? —Yes. 29. Are you aware whether any inquiry has been made or any rough estimate formed as to what cost would be involved in putting up a building of that description?—No, I am not. 30. Hon. Mr. Bowen.] You have looked at the site where the lawn-tennis court is?— Yes. 31. Do you think it is far-enough away from the banks, and sunlit enough, for a building?—■ Well, of course it is not an ideal site, but it is a good site. The position is such that the small disadvantage would be outweighed by the position. It would have to be arranged so that that would not be of material importance. 32. Bight Hon. Sir J . G. Ward.] Outside of those two, there are no sites that you know of in Wellington'?— No. 33. It is a fact that a number of curios and valuable articles in the Museum are stowed away because you cannot exhibit them?—A large quantity. It would be difficult to give an idea. I said fifty per cent., and I do not think that is an unreasonable estimate of what are not exhibited. 34. What effect is the building having upon the exhibits ?—lt is deteriorating them. With regard to the Maori work, some of the older specimens are wood, and they are being affected by the beetle in the building. 35. You are aware that that has been recognised by the Government, and that we were just about to accept a tender to get over the difficulty? —Yes. Pbtbk Hetbs examined. (No. 7.) 1. The Chairman.] What is your position?— Commissioner of Taxes, and Government Advances to Settlers Office Superintendent. 2. Will you inform the Committee whether you have at present sufficient accommodation for those Departments?—We have not; no. 3. Where are you at present located?— Partly in the Government Buildings and partly in Butler's building. 4. Then, the Department occupies separate premises?— Yes. 5. In different places?— Yes; there is an overflow. 6. So far as the accommodation in the Government Buildings is concerned, is it satisfactory? —No, it is very much overcrowded at present. The present building is very unsuitable for large offices; it was only intended for a number of small offices. 7. And, being a wooden building, 1 presume it is subject to fire?— Yes, decidedly so, and very hazardous. 8. Do you think it would be advantageous that your books, documents, and papers should be kept in a building not open to that risk? —We have about sixteen million securities in the Advances to Settlers, and about fifteen thousand mortgages and records ; and the Land-tax and Income-tax records and files are most valuable, which, if destroyed, would be most disastrous and irreparable. 9. How are you provided with strong-rooms?—We have a good strong-room there at present; but, of course, only the actual deeds are put into the strong-room. All the files containing all the particulars and details have to be left in the wooden "cupboards, also the records of the Land and Income Tax Department. 10. Is it desirable to have strong-rooms so as to place all the documents in? —Yes, or in fireproof offices. 11. Have you given any consideration to the question as to a suitable site for new offices supposing new offices were to be built? —No. Some years ago the Government was strongly urged to build suitable fireproof offices for those Departments on the vacant land at the rear of the present Government Buildings. 12. How do you think it would suit the public convenience if you had offices placed on the old Parliamentary Buildings site? —I think it would be a most convenient site. 13. And if other public offices were placed on the same ground in separate buildings adjacent thereto, that would also answer your purposes, would it? —Yes, that is so. 14. Can jou give the Committee any idea of the number of rooms you would require in the new building—the amount of space? —1 have no idea as to the measurement of the space we should require, but with the development that is going on in the Department we should require at least double the space we have now. 15. Ho\v many rooms have you?—We have two large rooms and seven small rooms, and this is what we should require at least in any new building, only of increased dimensions and more suitably arranged.

21

1.—14,

V. HEYES.

16. And you would require more than that number with a view to future contingencies?— Yes. At present I am unable to separate my lady clerks and typists. 1 have something like eleven or twelve young Jadies crowded in with a number of men in one office, and I am unable to get a separate office to deal with the correspondence, which is very inconvenient. The whole of my correspondence has to be done in one room, open to all the clerks, many only temporary, which is not as it should be. If more suitably arranged, about the same number of rooms would suffice. 17. And how many employees are there in the Department?—We have about 145 in all. 18. And the number will increase? —Yes. Extension is going on, and in the near future, in connection with the subdivision of Maori lands, by which the Maoris come into occupation, a rapid? increase will take place in the office-work, and also in the Advances to Settlers work. The Maoris are beginning to come in with many applications for loans. Both the Advances work and the Tax work must rapidly increase within the next few years—fully 50 per cent. —owing to extensive subdivisions now going on as the result of the graduated tax. 19. Then, you actually want now more accommodation than you have in one building?—l ought to have room for another fifty men more than I have now. 20. And there is no possibility of further accommodation in the present building?— No. I have made the greatest efforts to have my typists separated from the large office where all the men are, but I have not been able to secure any room. 21. Then, to give you the accommodation you require, there would need to be either an extension of the Government Buildings or another building erected elsewhere?— Yes. 22. Eight Hon. Sir J. G. Ward.] That is, apart from the number of men in Butler's building?— Yes, there are twenty men-there. 23. Is it convenient in an important Department like yours to have your staff divided? —No, it is most inconvenient, and it is not conducive to efficiency, but the reverse; in fact, the work is now done under the worst possible conditions. 24. In the matter of routine business, does it not mean the transfer of files and documents daily? —Yes, large numbers are being transferred, and two or three have run astray. Moreover, the division of the work makes it very difficult to get through; several cadets are entirely employed carrying heavy loads of files and records from room to room. The clerks are constantly referring, and, although I have a direct wire from Butler's building to my own office, still, speaking over the telephone is most unsatisfactory. There are often references to confidential letters, and it is most inconvenient and dangerous. Records and files are being constantly passed backwards and forwards in large numbers from room to room and from Butler's buildings to the Government Buildings, instead of all the clerks being in one room for easy reference. Much time is lost in going backwards and forwards. 25. That means more difficulty in supervision, of course?— Yes; it is most harassing. 26. And during your time as head of the Department there has been expansion of the business and an increase in the number of the employees?— Yes, very great expansion. 27. And, as far as you can judge, that would go on?— Yes, more so in the next two or three years than in the past, owing to very large developments taking place. 28. Has that portion of the building which you are in been healthy? —No, but the reverse. 1 have had strong objections and appeals from the men over and over again about the distressing conditions under which they have to work, and until we had the last alterations made and some extension it was really most painful. Last summer I felt sick just in walking through the office as the vitiated atmosphere was so thick. The state of tilings was taken up and condemned in the newspapers. 29. So that from the standpoint of the convenience of working the Department, and from the health of the staff, it would be better to have practically a separate detached building for the Land and Income Tax Department?— Yes, I think so. This was pressed on the Government years ago, and for safety of the records, &c. ■ 30. Mr. It. MeKen-ie.] Will the new Public Trust Office relieve the pressure on the Government offices to any extent? —There is room for the Native Department there, I believe, for a time, but it will soon be required exclusively for the Public Trust Office, and then I would possibly be able to get a fair amount of space for my men ; but the light is very bad at the back of the building, and it is very damp, and it would still leave the difficulty of the staff being divided into separate rooms instead of being all together to facilitate easy reference. The present building is very unsuitable in this respect. 31. Do you think it is preferable to have all the Government Departments in one building, or in separate buildings?—l think, as far as possible, some of them should be kept together; but there are some, like the Customs and Railways and Post Office, which are better separate, convenient to the place of their operations : they are great Departments in themselves, but most of the other Departments are dependent on one another, such as my Departments—the Advances and Land and Income Tax, the Treasury, Valuation, Stamps, and the Lands—all those should be kept together, or as near as possible. There is continual reference from one to the other, and if T wish to see Mr. Kensington, which I very often have to do, I have to climb to the top of the building. Charles Wu,son examined. (No. B.j 1. The Chairman.] What is your position?— Parliamentary Librarian. 2. You are asked to attend the Committee for the purpose of advising the Committee whether the accommodation at present available for the library is sufficient and satisfactory ?—I have been long of opinion that it is not sufficient. In fact, as years go on, the incompleteness of the library is proving a very serious drawback, not only as far as the staff is concerned, but more particularly in regard to the inconvenience to members. It is now nearly eight years ago since I took charge, and the yearly additions to the library during .that time have steadily increased, until now the

1.—14.

22

C. WILSON.

average is nearly from 2,400 to 2,700 volumes a year. You will see therefore that in ten years from now, on the lowest computation, there will be an increase of 25,000 volumes. The number of volumes now is about 65,000. The yearly increase is not likely to be less, beoauge there are a number of new societies coming into existence from which we get books in exchange. Necessarily the volume of matter pouring into the library must annually be considerably larger. Next year, for example, I anticipate the total increase by donation, exchange, and purchase will be probably three thousand. The library as at present arranged is certainly most inconvenient, and it is very unfortunate that there should be such a large number of separate rooms. A modern library should not be arranged on that principle at all. Whether the rotunda principle would be provided here, of course, is not a matter for me to say. When 1 went round the world, four years ago, I visited no less than nine separate Parliamentary Libraries—Melbourne, Sydney, Adelaide, Perth, Victoria, Vancouver, Toronto, Winnipeg, Albany (N.Y.), and others; and the conviction that remained on my mind when I came back was that the large single-chamber system was better than our system of dividing rooms. It is exceedingly difficult in this library, unless you have an enormously increased staff and necessarily increased expenditure, to exercise proper supervision, and consequently there cannot be that closer and more effective attendance given to members that I should like to see and for ivhich members themselves frequently express a desire. It would be my great ideal to see the library arranged on the British Museum and Ottawa principle—namely, to have one large room, which could be surveyed by one or two assistants in a glass office on the ground floor, with writing and smoking rooms branching off the main ground-floor room, but with the whole of the books in the main building. The whole difficulty in that case is the question of expansion. However, that is a question for the architects to consider, and not for me. There is no doubt whatever that the library as at present arranged fails altogether to meet the requirements of Parliament and the country. The question of newspapers alone is a big item. We are now filing over forty daily papers in the library. There must be altogether over a hundred newspapers in the library, and, however small or large a newspaper may be, it is carefully filed, because it may contain reports of meetings of local bodies and information as to many other local and district matters. ■ We have in the cellar 16,000 volumes, and, although it is sometimes said that it is not desirable to keep a large number of official publications, yet occasions do occur when very old books are required which it might be considered would never be needed. The same thing occurs in regard to the publications of the Imperial Government, the official publications of Australian and other colonies. They represent several thousand volumes. They could not be disposed of, and we must have room for them. The waste of time involved in searching for books in so many separate rooms is very great. The arrangements in the present library are altogether very unsatisfactory. The difficulty in arranging for space in the present library has been largely responsible for the misplacement of volumes, of which members have complained. 3. Have you formed any idea as to what additional space you would require as compared with what you have now?—l may say this library is now practically full —that will sum up the position —and that the increase is so great that within the immediate future—within two years —there will be a very serious lack of space. After the two years the increased difficulty will be on a much larger ratio as times goes on and there is no more space to play upon. The basement is nearly full. We could get a little more room there by having more shelving, but it is very questionable whether that would meet the difficulty. At all events, it would be only temporary. 4. Have you given any consideration to the question of a site? You know the object of the Committee's inquiry, and you know the various propositions that are afloat. Now, supposing it should happen that the Parliamentary Buildings remained permanently on the Government 1 louse site, would it not be expedient that the library should be removed from its present site down nearer the Legislature, or do j'ou think it would be convenient if members had to go across to the library?—No, I think it would be inconvenient. I feel certain that at the present time members are not referring to many books in the library that they would like to refer to simply on account of the difficulty in getting across in time to refer to the books. Members frequently have this session asked me for certain information and got me to tabulate that information for them on account of the distance of the library from the Legislature. It means a great delay in having the books sent backwards and forwards, and it actually affects the value of the debates, because members do not go to the reference-books for information which they would use in their speeches simply because of the great difficulty in getting them over in time. 5. Then, I understand you to say that, in the event of the Parliamentary Buildings being permanently located where Parliament is now sitting, the library should be brought nearer?— Absolutely, and that with the least possible delay. I cannot conceive of any state of affairs in which the library could be of any great value were it any great distance away from where member's actually sit. 6. As a matter of fact, you have spoken of a totally differently arranged building?— Yes. 7. Would it be possible to do that on the present site?— Certainly not, unless a totally different building were erected. 8. And that would involve pulling down the present building?— Yes. 9. Hon. Mr. Bowen.] You think that the whole library ought to be in one room—the readingroom might to be one large room and not divided? —Yes, I do, on the principle of the British Museum, or the Ottawa principle. I might suggest that it may be advisable that Ibe instructed to get the plans of four or five libraries built on that principle. 10. Hon. Dr. Findlay.l What proportion of the books in the library, roughly approximated, do the novels bear to the reference-books?—A mere drop in the ocean. We spend, roughly, about £85 a year on novels and current fiction. We are, however, I must say, the only library that I know of that spends money on fiction; but, of course, the amount is very small.

1.—14.

23

C. WILSON.

11. But it takes up so much space? —The space required is not great, but the novels take up more time in issuing them backwards and forwards than any other books. They are so frequently taken out and brought back that it is a distinct disadvantage; but they do not occupy much space. 12. Hon. Mr. Bowen.~\ In most libraries of this sort the novels are confined to standard novels'/ —The only one I did not ask about was Brisbane, but in every one of the other parliamentary libraries I went to there was no fiction. 13. Except standard books? —Yes, purely standard classical fiction. 14. Books that have stood the test of time? —Yes. 15. Hon. Mr. Paul.] In this one-room system would you have all the Government publications and technical works—everything in one room?—ln the British Museum they have about two hundred thousand volumes in the one room, and those that are required quickly are necessarily close at hand. In Ottawa they have practically all in the same rotunda. There are divisions into classes just as you have them in this library, but the bulk of the books commonly in use are in the one great room. The drawback in regard to that class of building is the difficulty of extension : you have to allow for a larger building than you require at the commencement. IG. Can you express an opinion as to the suitability of the present library buildings for Government Departmental Offices?—l am a book-man, but I would suggest that it would do for a Colonial Museum. The large room upstairs would be admirable for a museum or picture-gallery, it being well lit for that purpose. In regard to the stack-room, I trust that we shall not have a stack-room in the new library —it was a grave mistake and a great waste of money. /17. It is only fit for storage purposes ?—Yes.

Ap/rrozimate Cost of Paper.—Preparation, not given ; printing (1,500 copies, including plans,), £68 13s. 6d.

Authority : John Maokay, Government Printer, Wellington.—l9oB.

Prict Is. 3d.]

Sketch shewing proposed utilization of parliamentary building site for Governmental Department offices

Site OF Existing Govt Department Buildings lambton Quan

SKETCH FOR GOVERNOR NEW RESIDENCE

I._14.

Government HOUSE WELLINTON

1.-14.

DEPARTMENTAL BUILDINGS SITEPLAN SHOWING SUGGESTED SUBDIVISIONS— Dimensions will' be subject foalteration on correct survey of entire blockScale 30 feet to an inch

DEPARTMENTAL BUILDINGS SITE— PLAN SHOWING SUGGESTED SUBDIVISIONS Dimensions will be alteration on correct survey of entire block Scale. 30 feet to an inch

This report text was automatically generated and may include errors. View the full page to see report in its original form.I whakaputaina aunoatia ēnei kuputuhi pūrongo, e kitea ai pea ētahi hapa i roto. Tirohia te whārangi katoa kia kitea te āhuatanga taketake o te pūrongo.
Permanent link to this item
Hononga pūmau ki tēnei tūemi

https://paperspast.natlib.govt.nz/parliamentary/AJHR1908-I.2.6.2.18/1

Bibliographic details
Ngā taipitopito pukapuka

JOINT PARLIAMENT BUILDINGS SITE COMMITTEE (REPORT OF THE) ON THE MOST SUITABLE SITE FOR THE ERECTION OF PARLIAMENT BUILDINGS; TOGETHER WITH MINUTES OF PROCEEDINGS AND EVIDENCE. (Hon. Sir W. J. STEWARD, Chairman.), Appendix to the Journals of the House of Representatives, 1908 Session I, I-14

Word count
Tapeke kupu
24,911

JOINT PARLIAMENT BUILDINGS SITE COMMITTEE (REPORT OF THE) ON THE MOST SUITABLE SITE FOR THE ERECTION OF PARLIAMENT BUILDINGS; TOGETHER WITH MINUTES OF PROCEEDINGS AND EVIDENCE. (Hon. Sir W. J. STEWARD, Chairman.) Appendix to the Journals of the House of Representatives, 1908 Session I, I-14

JOINT PARLIAMENT BUILDINGS SITE COMMITTEE (REPORT OF THE) ON THE MOST SUITABLE SITE FOR THE ERECTION OF PARLIAMENT BUILDINGS; TOGETHER WITH MINUTES OF PROCEEDINGS AND EVIDENCE. (Hon. Sir W. J. STEWARD, Chairman.) Appendix to the Journals of the House of Representatives, 1908 Session I, I-14

Log in or create a Papers Past website account

Use your Papers Past website account to correct newspaper text.

By creating and using this account you agree to our terms of use.

Log in with RealMe®

If you’ve used a RealMe login somewhere else, you can use it here too. If you don’t already have a username and password, just click Log in and you can choose to create one.


Log in again to continue your work

Your session has expired.

Log in again with RealMe®


Alert