A.—4a
22
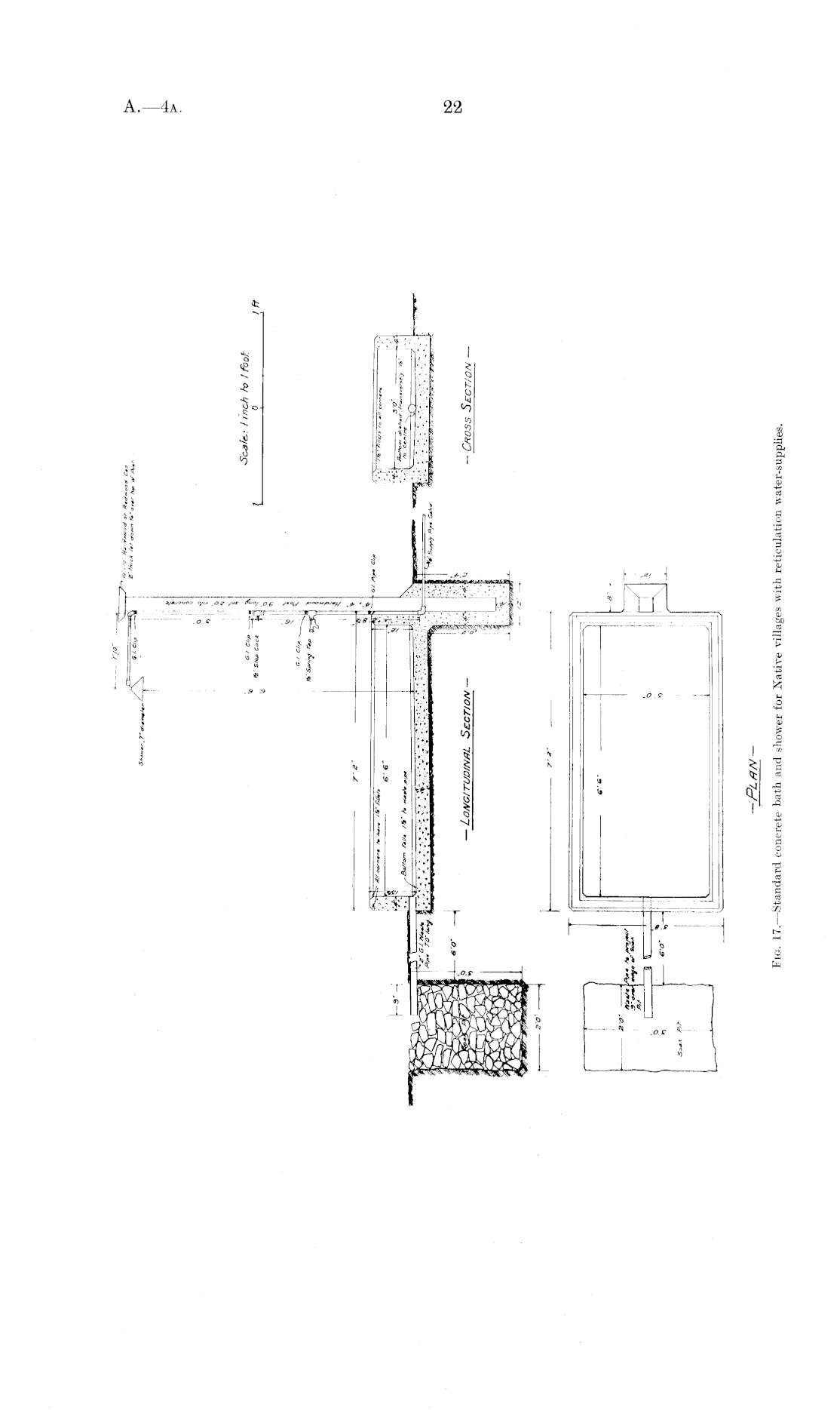
Fig. 17.—Standard concrete bath and shower for Native villages with reticulation water-supplies.
Use your Papers Past website account to correct newspaper text.
By creating and using this account you agree to our terms of use.
Your session has expired.